Tracy Phillips Estates


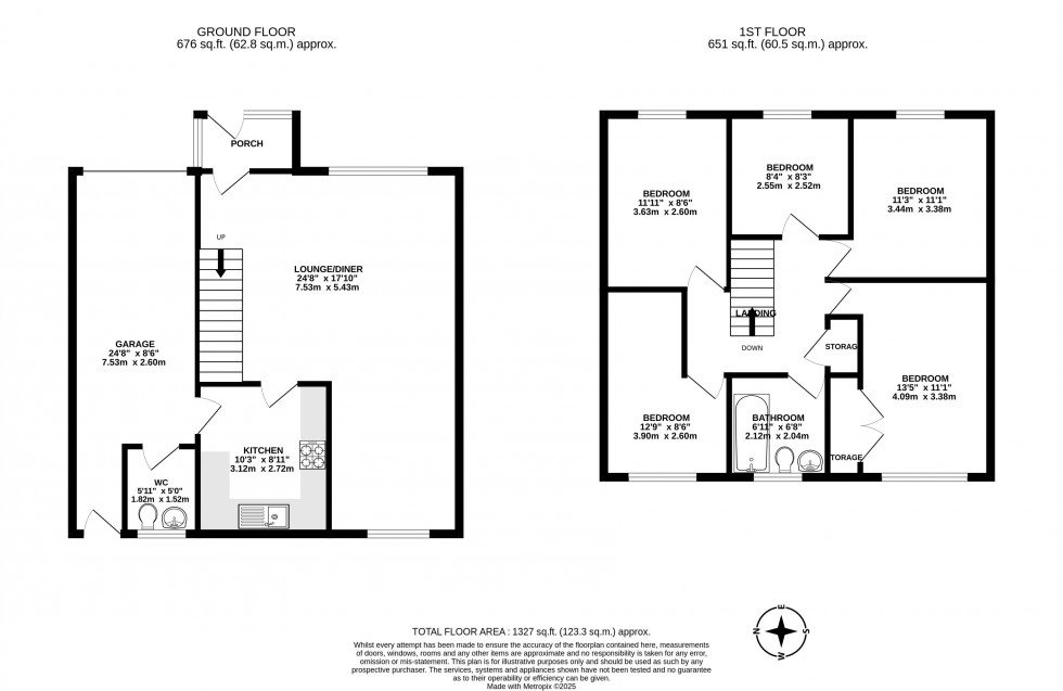
Located in the heart of Whitley on a quiet residential street, this extended and detached family home on Walter Scott Road offers impressive living space, spanning over 1,327 square feet.


The property features a spacious open-plan dining kitchen, five well-proportioned bedrooms, and a family shower room. With generous room sizes throughout, the home also benefits from a sunny, rear garden — ideal for families and entertaining.


Presented as a blank canvas, the home provides excellent potential for modernisation or further extension, making it a fantastic opportunity to create a dream family residence in a highly sought-after location. With outstanding local schools and excellent transport links close by, this is a prime spot for families.


The accommodation begins with an entrance hallway that leads into a bright and welcoming open-plan lounge and dining area, centred around a cosy fireplace. At the rear of the home, the kitchen is fitted with a range of wall and base units, an eye-level oven, and provides internal access to the integral garage. A convenient ground floor cloakroom is also located off the kitchen, with a door opening into the garden.


Upstairs, the first floor offers five bedrooms, some of which benefit from built-in storage, and a modern three-piece family shower room.


Externally, the property boasts a large brick paved driveway, edged by lawns and leading to the integral garage. The rear garden is private, secure, and is currently laid to lawn with a flagged patio area. There is also a further brock built store/ workshop however this could be easily converted to a work from home space if needed. 


Offered with no onward chain, this spacious and versatile home in the desirable area of Whitley is now available for viewings and offers an exciting opportunity for families looking to make a home their own.

Floorplan for Walter Scott Avenue, Wigan
  • Five Bedroom Detached House
  • Spacious Open-Plan Dining Kitchen
  • Fantastic Opportunity to Create a Dream Family Residence
  • Generous Room Sizes Throughout
  • Private Rear Garden
  • Viewing Recommended

Book a Viewing


1About You


2Pick a Day


  1. This Week
  2. Next Week
  3. In a Fortnight

3Select a Time


This site is protected by reCAPTCHA and the Google Privacy Policy and Terms of Service apply.