Tracy Phillips Estates


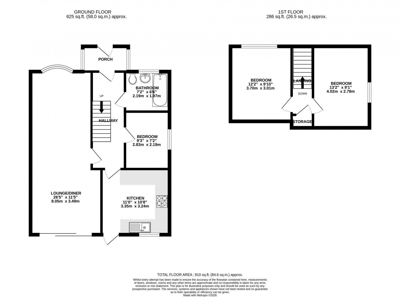
Positioned on a generous plot along one of Shevington’s most sought-after addresses, this three-bedroom semi-detached home offers flexible living accommodation extending to approximately 910 sq ft. Ideally suited to a range of buyers, the layout includes a ground floor bedroom, providing excellent versatility for multi-generational living, guests, or a home office.The accommodation begins with a glazed entrance porch leading into the welcoming hallway. The lounge and open-plan dining space form a bright and welcoming room that runs from the front to the rear of the property. A large picture window to the front elevation fills the space with natural light, while an electric fire creates a cosy focal point. Patio doors lead out to the garden, and there is ample room for both living and dining.


The kitchen is located at the rear of the home and is fitted with a classic cream Shaker-style range of units, complemented by integrated eye-level ovens, a gas hob, and an integrated fridge, along with space for a washing machine. A door provides direct access to the garden.


A ground floor bedroom, currently used as a playroom, offers flexible accommodation and could easily serve as a bedroom if required. The ground floor is completed by a fully tiled, neutral three-piece bathroom comprising a panelled bath with overhead shower, wash hand basin, and WC.


To the first floor, the bedrooms are bright and spacious, with the main bedroom benefiting from a range of fitted wardrobes and enjoying long-distance views thanks to the property’s elevated position.


Externally, the front garden is edged by lawns, alongside a long driveway that extends down the side of the property through wooden gates to a detached garage at the rear. The rear garden itself is a generous space, featuring a lawn and patio area ideal for outdoor enjoyment.


Shevington village is just a short walk away and provides an excellent range of local amenities, shops, and schools, including Shevington High School, which is within five minutes on foot. The property also benefits from convenient access to motorway and rail networks, while the beautiful Elnup Woods is right on the doorstep.


Offered for sale with no onward chain, early viewing is highly recommended.

Floorplan for Shevington Lane, Shevington, Wigan
  • Superbly Located Semi Detached Dormer Bungalow along one of Shevington's Best addresses
  • Flexible Floorplan
  • Bright lounge with open-plan dining space, patio doors to the garden, and ample room for living and dining
  • Rear kitchen in classic cream Shaker style with integrated eye-level ovens, gas hob, integrated fridge, and garden access
  • Versatile ground floor bedroom (currently a playroom) and fully tiled three-piece family bathroom
  • Two bright and spacious first floor bedrooms, with the main bedroom featuring fitted wardrobes and long-distance elevated views

Book a Viewing

This site is protected by reCAPTCHA and the Google Privacy Policy and Terms of Service apply.