Tracy Phillips Estates
This beautiful four bedroom quasi semi-detached home is situated along the desirable Preston Road. The charming double-fronted home offers generous living space and timeless character throughout. Boasting an impressive circa 1,907 sq. ft. of accommodation, this property is perfectly suited for a growing family. Thoughtfully laid out over two floors, the home features spacious and well-balanced rooms filled with period charm—high ceilings, exposed beams, and open fireplaces add a touch of warmth and heritage to the living areas.

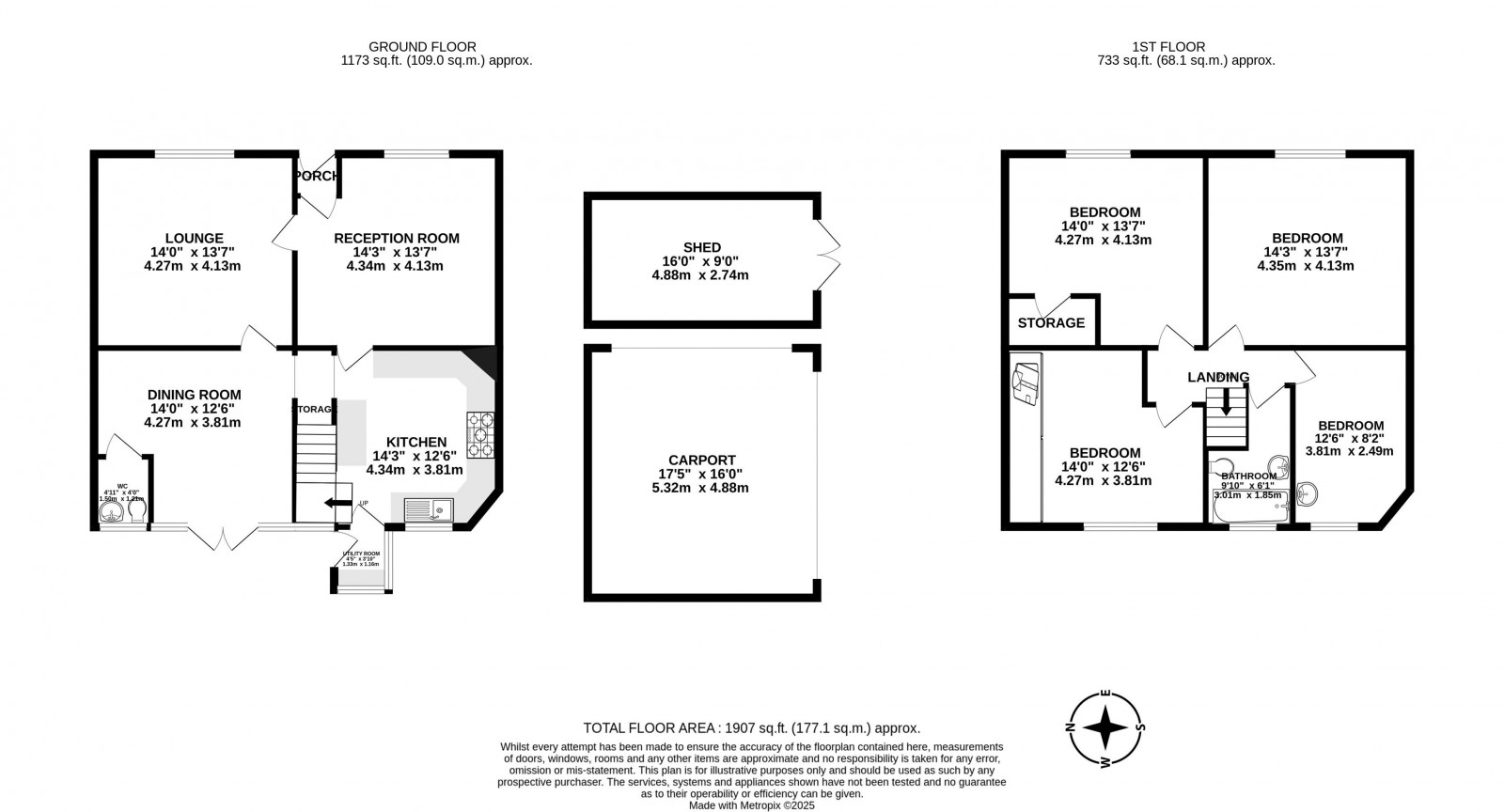
The accommodation begins with a welcoming entrance porch leading into a cosy sitting room, a separate lounge, and a formal dining room. A modern ‘Shaker’-style fitted kitchen come complete with integrated appliances and a range cooker and is complemented by a separate utility room and a convenient ground floor W.C. Upstairs, the spacious landing provides access to four generously sized double bedrooms and a well-appointed family bathroom. To the rear, the property enjoys a beautifully landscaped, south-facing garden with a large patio—perfect for outdoor dining and entertaining. A large shed with power offers additional storage or workspace. A shared driveway leads to a carport at the rear, providing ample off-road parking.

Located just a short walk from the vibrant heart of Standish village, residents can enjoy an array of shops, bars, restaurants, supermarkets, and local amenities. Families will also appreciate the property's proximity to the highly regarded Standish High School, just a stone’s throw away, as well as excellent transport links via the nearby M6—ideal for commuters.

Early viewing is highly recommended to fully appreciate the space, character, and location this wonderful home has to offer.
Floorplan for Preston Road, Standish, Wigan
EPC Graph for Preston Road, Standish, Wigan
  • Stylish Character Double Fronted Home
  • Parking & Gardens to Rear
  • Four Double Bedrooms and Family Bathroom
  • Three Reception Rooms
  • Walking Distance to Standish Village & High School
  • Circa 1907 Sq Ft

Book a Viewing


1About You


2Pick a Day


  1. This Week
  2. Next Week
  3. In a Fortnight

3Select a Time


This site is protected by reCAPTCHA and the Google Privacy Policy and Terms of Service apply.