Tracy Phillips Estates
An outstanding traditional semi-detached home, beautifully finished and full of character, extending to nearly 1,100 sq ft. This exceptional family home offers thoughtfully designed accommodation with an elegant mix of contemporary updates and classic features. Internal inspection is highly recommended to fully appreciate the quality and attention to detail throughout.
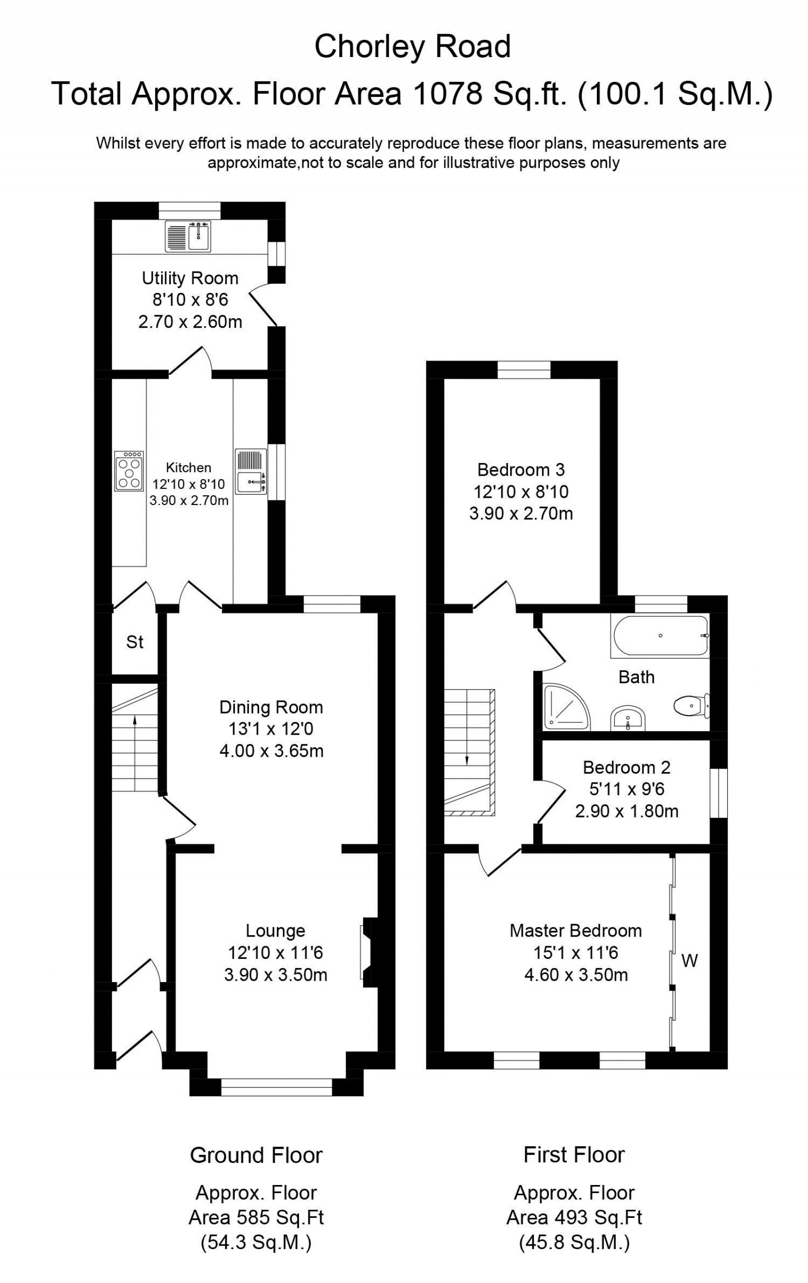
Arranged over two welcoming levels, the accommodation briefly comprises an inviting entrance hallway with staircase rising to the first floor. The open-plan lounge and dining room is a superb family space, featuring two exposed brick fireplaces, one with an open fire, and a walk-in bay window. Dual aspects create a bright, light and airy environment, complemented by striking herringbone flooring throughout the ground floor reception areas. At the rear, the kitchen has been refitted with sleek, contemporary stone-coloured units and offers a well-planned layout for modern family living. Features include an electric hob, eye-level oven, space for an American-style fridge freezer, and integrated dishwasher, with matching units used in the sizeable utility/laundry room, which also provides additional storage, laundry facilities and direct access to the rear garden.
The first floor comprises three excellent bedrooms. Two are generous doubles, with the principal bedroom featuring two windows, fitted wardrobes and an elevated outlook. The third bedroom is currently a pretty nursery. The family bathroom is tastefully appointed with a modern suite including wash hand basin, WC, panelled bath and separate shower enclosure.
Externally, the property occupies a generous plot with a beautifully landscaped rear garden. Features include a lawned area, Indian stone patio ideal for alfresco dining, raised lawn, and brick-built planting beds. Parking is provided to the front with dedicated bays where an electric vehicle charging point is also installed and to the rear. Additional benefits include gas central heating and double glazing. Meticulously maintained, this much-loved home combines classic character with modern finishes, creating elegant and inviting living spaces ideal for family life.
The property is situated in the highly desirable village of Standish, known for excellent schools, a wide range of amenities including shops, library and leisure facilities, and a thriving community with popular bars and restaurants. There is also excellent access to the motorway network, making commuting straightforward.
Viewings of this beautifully presented home are now invited.
Floorplan for Chorley Road, Standish, Wigan
  • Stylish, character-filled semi-detached home extending to nearly 1,100 sq ft, thoughtfully laid out for modern family living.
  • Ground floor reception rooms feature dual-aspect open-plan lounge/dining with exposed brick fireplaces and elegant herringbone flooring.
  • Contemporary stone-coloured kitchen with electric hob, eye-level oven, integrated dishwasher, and space for an American-style fridge freezer; matching units in the spacious utility/laundry room with garden access.
  • Three generous bedrooms, including a principal with fitted wardrobes and elevated outlook, plus a modern family bathroom with bath and separate shower.
  • Beautifully landscaped rear garden with lawn, Indian stone patio, raised beds, and parking to front and rear with electric vehicle charging point.
  • Prime location in Standish, close to excellent schools, shops, leisure facilities, bars and restaurants, with easy motorway access.

Book a Viewing

This site is protected by reCAPTCHA and the Google Privacy Policy and Terms of Service apply.