Tracy Phillips Estates


Set within the sought-after Wainhomes development in the heart of Standish, Willowherb Pastures offers a perfect blend of modern living, family-friendly design, and a desirable location. This attractive three-bedroom semi-detached property is ideal for first-time buyers, growing families, or those looking to downsize without compromising on style or space.


Upon entering, you are welcomed into a bright and spacious hallway leading to a contemporary open-plan kitchen and dining area, fitted with modern units and integrated appliances and French Doors leading in to the garden and perfect for entertaining or relaxing on summer evenings.To the opposite side of the property, there is a generous lounge with windows to two aspects and filling the room with light. 


Upstairs, the property boasts three well-proportioned bedrooms, including a stylish master bedroom with en-suite shower room. A sleek family bathroom completes the upper floor, offering a modern suite and neutral décor throughout.


Externally, the home benefits from a private driveway providing off-road parking, a well-maintained  garden ideal for children or pets, there has been an additional electric charging point installed and under soffit lighting and the property is set in a quiet residential setting within walking distance to local schools, shops, and amenities.


With excellent transport links to the M6 and Wigan town centre, the recently built estate is a superb opportunity to own a quality-built home in a thriving and well-connected community. The centre of Standish is easy to reach with a newly built walkway right in to the heart of the village. Easy motorway access is also close by.

Viewings are now welcomed. 

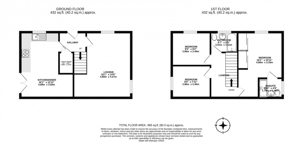
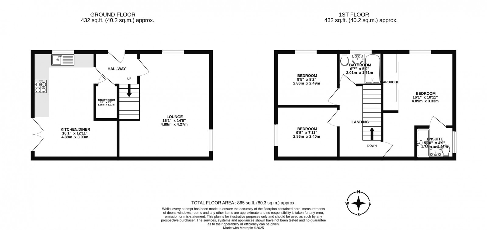
Floorplan for Willowherb Pastures, Wigan
  • Well Presented Semi Detached House
  • Driveway and Electric Charging Point
  • Three Bedrooms
  • Family Bathroom & En Suite Shower Room
  • Popular Estate Location

Book a Viewing

This site is protected by reCAPTCHA and the Google Privacy Policy and Terms of Service apply.