Tracy Phillips Estates


Located on an exceptionally popular street in the heart of Swinley, this attractive traditional semi-detached home offers fantastic potential and spacious extended accommodation.


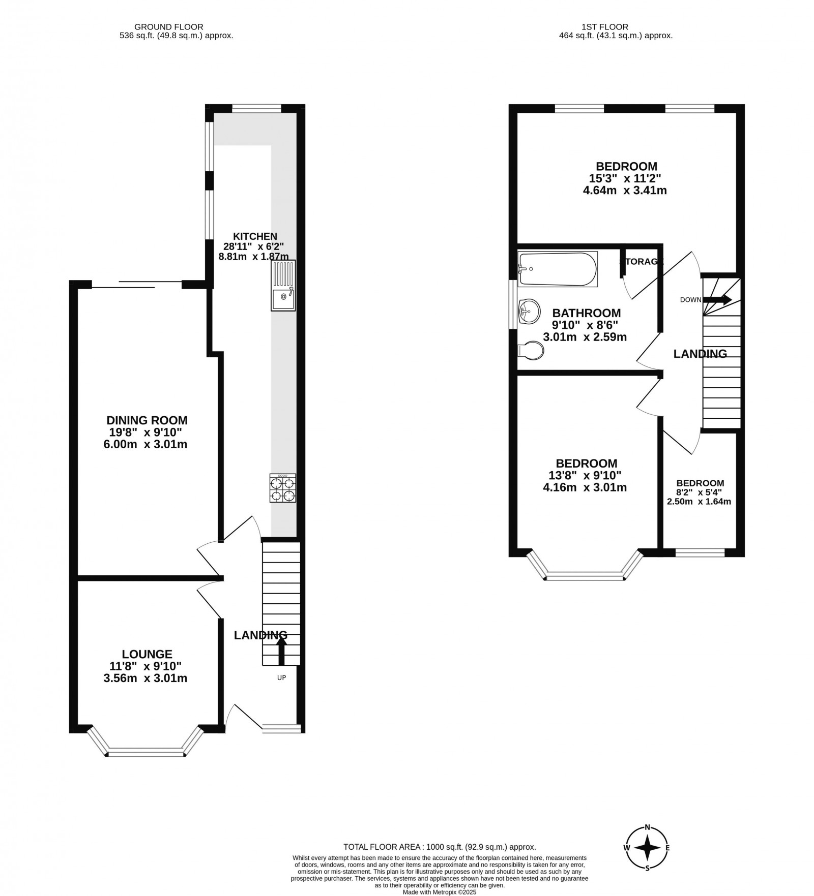
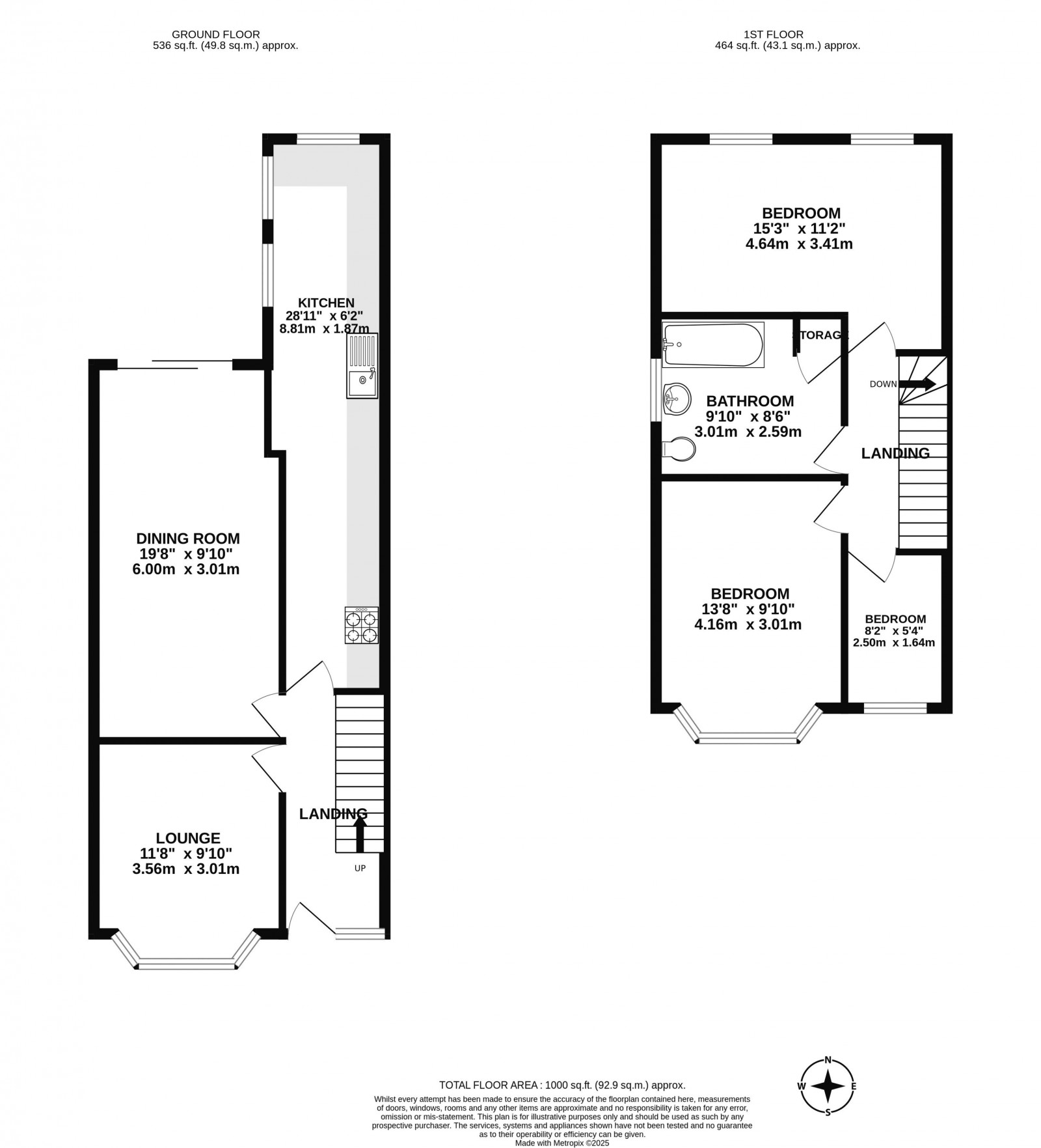
The property features three bedrooms, two reception rooms, and an extended kitchen, providing ample space for family living. A family bathroom is situated on the first floor.


To the front, there is off-road parking, while to the rear lies a much larger-than-average garden—a standout feature of this home. The garden is not overlooked, offering a rare level of privacy and a fantastic opportunity for outdoor entertaining, gardening, or potential future extensions (subject to planning).


This home enjoys a prime location with Wigan town centre, the lovely Mesnes Park, and Haigh Country Estate all within walking distance. A wide selection of local bars, cafés, and eateries are also just a short stroll away, making this an ideal spot for both convenience and lifestyle.


While the property does require refurbishment, it represents a superb opportunity to create a stylish and spacious family home in one of Wigan’s most desirable residential areas.


Auctioneer Comments

This property is for sale by Modern Method of Auction allowing the buyer and seller to complete within a 56 Day Reservation

Period. Interested parties’ personal data will be shared with the Auctioneer (iamsold Ltd).

If considering a mortgage, inspect and consider the property carefully with your lender before bidding. A Buyer Information

Pack is provided, which you must view before bidding. The buyer is responsible for the Pack fee. For the most recent

information on the Buyer Information Pack fee, please contact the iamsold team.

The buyer signs a Reservation Agreement and makes payment of a Non-Refundable Reservation Fee of 4.5% of the purchase

price inc VAT, subject to a minimum of £6,600 inc. VAT. This Fee is paid to reserve the property to the buyer during the

Reservation Period and is paid in addition to the purchase price. The Fee is considered within calculations for stamp duty.

Services may be recommended by the Agent/Auctioneer in which they will receive payment from the service provider if the

service is taken. Payment varies but will be no more than £960 inc. VAT. These services are optional.
Floorplan for Lessingham Avenue, Wigan
EPC Graph for Lessingham Avenue, Wigan
  • FOR SALE VIA MODERN METHOD AUCTION - T & C's APPLY
  • Online Bidding Available
  • Fixed Timescale for Exchange and Completion
  • Buy with Finance
  • Subject to Reserve Price

Book a Viewing


1About You


2Pick a Day


  1. This Week
  2. Next Week
  3. In a Fortnight

3Select a Time


This site is protected by reCAPTCHA and the Google Privacy Policy and Terms of Service apply.