Tracy Phillips Estates


Beautifully Presented Three-Bedroom Dormer Bungalow in Sought-After Standish


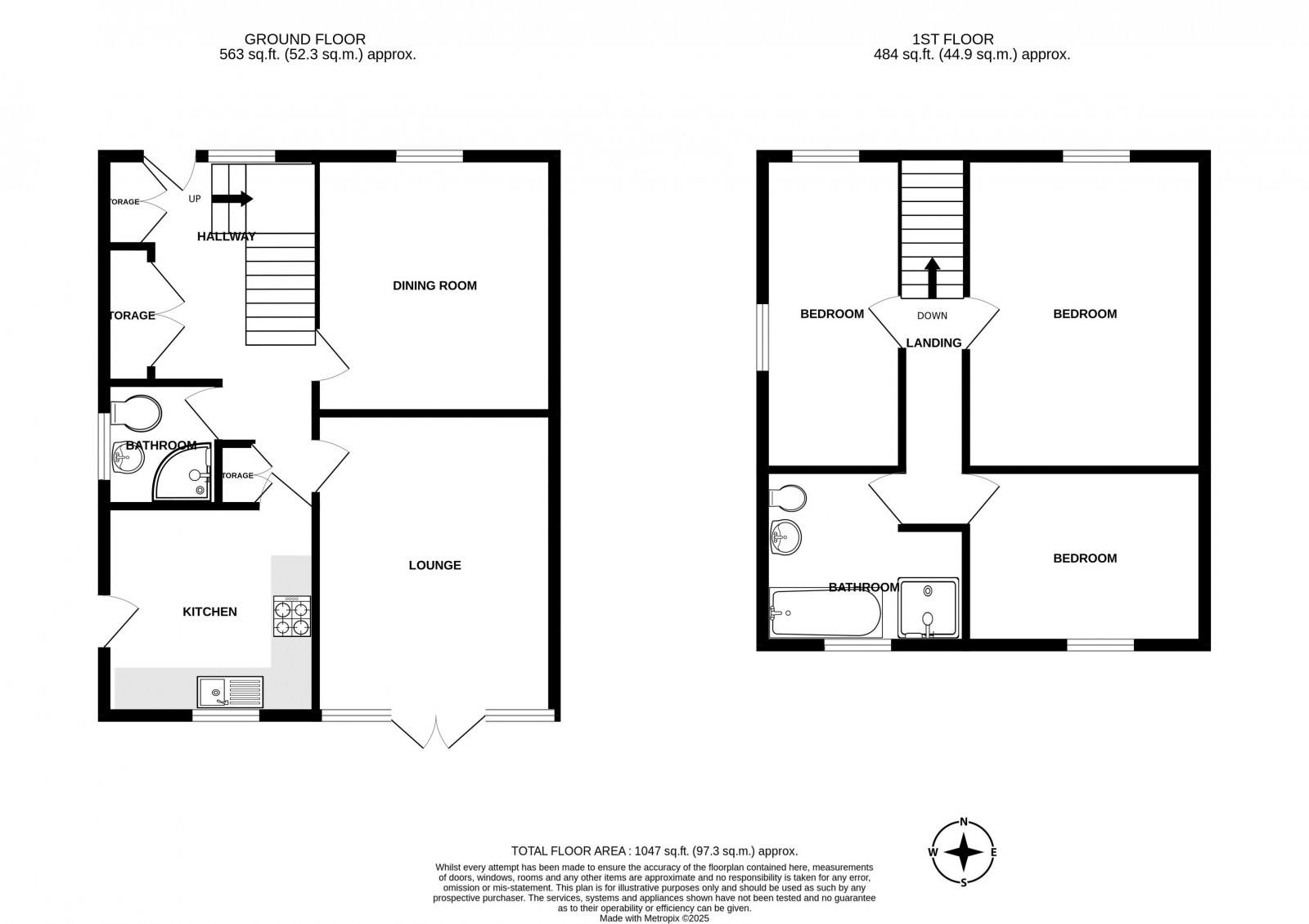
Tucked away on a quiet residential street, this immaculately maintained and tastefully appointed three-bedroom semi-detached dormer-style bungalow offers a generous 1,047 sq. ft. of versatile living space. Ideal for families, it also presents a unique opportunity to accommodate an elderly or disabled relative, thanks to its flexible layout.


Enjoying stunning views towards Winter Hill, the property has recently been enhanced with a new driveway and is arranged over two well-planned floors.


Upon entering, you are welcomed by a spacious hallway with ample storage and a spindled staircase rising to the first floor. The front reception room, currently used as a dining room, could easily serve as a ground-floor bedroom if desired. To the rear, a second reception room serves as a comfortable lounge, featuring a charming fireplace and picturesque views of the beautifully kept garden.


The ground floor also includes a modern kitchen fitted with a range of wall and base units, integrated appliances, and contemporary finishes. A generous ground floor shower room, complete with a classic white suite—wash hand basin, corner shower, and WC—adds further convenience. Two large storage cupboards are also accessed from the spacious hallway.


Upstairs, you’ll find three bright and well-proportioned bedrooms. The master benefits from , while the stylish family bathroom features a four-piece suite including a bath, separate shower, vanity basin, and WC.


Outside, the property sits behind a low brick wall with gated access to a smart impressed concrete driveway, leading to a detached garage. The private, south-facing rear garden is laid to lawn with a paved patio—perfect for summer barbecues—and enjoys open views across the neighbouring school playing fields.


Located in the heart of the ever-popular village of Standish, this home is within walking distance of highly regarded schools, scenic countryside walks, and excellent motorway links. Standish is known for its vibrant community spirit and is home to Wigan’s only Grade I listed building, adding a touch of history to this thriving area.


Early viewings are highly recommended to fully appreciate everything this charming and versatile home has to offer.

Floorplan for Dovedale Drive, Wigan
  • Popular and Quiet Residential Location
  • Verstaile and Flexible Floorplan
  • New Driveway, Gardens & Garage
  • Two Bathrooms & Three Bedrooms
  • Open Views to Rear

Book a Viewing


1About You


2Pick a Day


  1. This Week
  2. Next Week
  3. In a Fortnight

3Select a Time


This site is protected by reCAPTCHA and the Google Privacy Policy and Terms of Service apply.