Tracy Phillips Estates
Set within a private and secluded plot on the edge of Wigan’s countryside, Sawmill House is a truly exceptional and substantial Grade II listed family home, steeped in history and character. Originally constructed in 1839 as a sawmill, this impressive stone-built property has been sympathetically converted into a large family estate, offering expansive and versatile accommodation ideal for multi-generational living, home business use, or lifestyle buyers seeking rural tranquillity with modern convenience.
Constructed from dressed stone beneath a slate roof, the home retains a wealth of original features. The property is tucked away via a single-track approach and is surrounded by its own private grounds, which include wraparound gardens, a cobbled courtyard, and two driveways offering ample off-road parking.
Inside, the main house and attached annexe offer approximately 2,809 sq ft of accommodation. The traditional double-fronted layout includes two formal reception rooms centred around a grand entrance hall, with a beautiful staircase rising to the first floor. The formal kitchen is fitted with a range of bespoke units, a central island, and a range cooker, offering a perfect space for both family life and entertaining. The first floor provides four well-proportioned bedrooms, two of which benefit from en-suite facilities, along with a spacious family bathroom. Above, the second-floor attic spaces offer a further 513 sq ft of storage or potential conversion, subject to the necessary permissions.
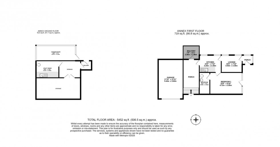
Attached to the main house is a fully self-contained annexe, featuring its own lounge, kitchen, bedroom, and shower room, accessed via a conservatory. In addition, a second detached annexe or apartment provides a further 1,232 sq ft of multi-functional space. This includes ground-floor storage areas, a separate lounge and bedroom, a kitchenette, and a wet room making it ideal for independent living, guest accommodation, a studio, or even business use.
Externally, the property continues to impress. A large L-shaped detached garage is accompanied by four separate container stores, providing abundant storage or potential for further development. The grounds are beautifully laid out with lawns, mature trees, a cobbled courtyard and two driveways that wrap around the home, allowing easy access and privacy.
The property’s setting, size, and configuration make it particularly appealing to those looking to run a business from home or create a flexible, multi-generational lifestyle estate, subject to any necessary planning consents.
Floorplan for Sawmill House, Wigan Road, Aspull Floorplan for Sawmill House, Wigan Road, Aspull Floorplan for Sawmill House, Wigan Road, Aspull
  • Impressive Grade 2 Listed Estate
  • Consisting of Three Separate Parts Including Two Self Contained Annexes
  • Private Driveway Approach
  • Large Garage Facilities with Additional Storage
  • Countryside Views
  • Total Square Footage Approx 5452

Book a Viewing


1About You


2Pick a Day


  1. This Week
  2. Next Week
  3. In a Fortnight

3Select a Time


This site is protected by reCAPTCHA and the Google Privacy Policy and Terms of Service apply.