Tracy Phillips Estates

A Characterful Detached Home with Stunning Views Towards Rivington Pike



This attractive, traditional detached home retains much of its original charm and occupies a superb plot, with the rear garden enjoying far-reaching views towards Rivington Pike. Offering a generous floor area of approximately 1,538 sq. ft. this spacious and character-filled property is also available with no onward chain.


Step through the distinctive arched entrance doorway into a welcoming hallway, where a staircase leads to the first floor. The front reception room features a large bay window, wall lights, arched recesses, and a beautiful marble fireplace, creating a warm and inviting space. The rear reception room also includes a marble fireplace with living flame fire and a large walk-in bay window that perfectly frames the spectacular views — an ideal spot to relax and unwind. The kitchen is fitted with a range of wall and base units and leads to a rear hallway with a ground floor W.C., tiled walls and flooring, and a door providing access to the garden.  Upstairs, you'll find three well-proportioned bedrooms — two generous doubles with fitted wardrobes and a comfortable single. Both double bedrooms benefit from the elevated position and enjoy far-reaching views over the historic village of Up Holland and towards Rivington. The family bathroom features a traditional three-piece suite comprising a panelled bath, pedestal wash hand basin, and W.C.    


Exterior & Grounds:  The home sits on a substantial and well-maintained plot, offering fantastic potential for side extension (subject to the necessary planning consents). A block-paved driveway leads to a sizeable attached garage and provides off-road parking for multiple vehicles, all bordered by a low-maintenance front garden.  To the side, a secure gated entrance opens to a safe and private rear garden. An elevated patio area is ideal for al fresco dining or relaxing while taking in the stunning views. Steps lead down to a generous lawned garden — perfect for families and gardening enthusiasts. There is also access to a ground floor utility room, positioned at the rear of the garage, offering practical additional space. 


Location: Located in the picturesque and historic village of Up Holland, the property offers a peaceful yet convenient setting. The area boasts a variety of local amenities, highly regarded schools, scenic woodland walks, and excellent access to the motorway network — making it ideal for commuters and families alike. 


This impressive home combines character, space, and superb potential — early viewing is highly recommended.

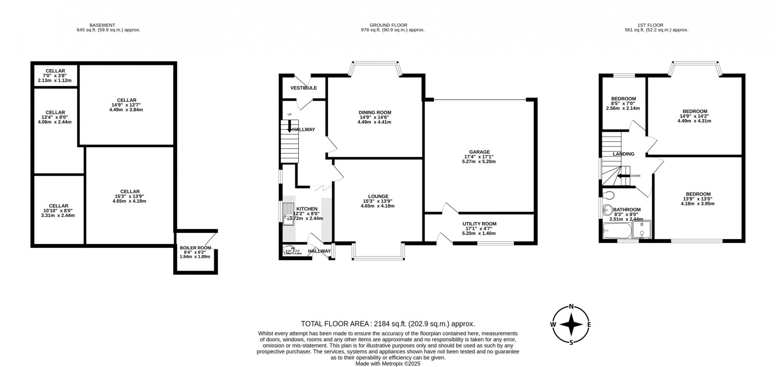
Floorplan for Dingle Road, Upholland, Skelmersdale
EPC Graph for Dingle Road, Upholland, Skelmersdale
  • Period Property with Fantasitc Views
  • Large Rear Garden
  • Large Driveway and Double Garage
  • Offered With No Chain
  • Good Location

Book a Viewing

This site is protected by reCAPTCHA and the Google Privacy Policy and Terms of Service apply.