Tracy Phillips Estates


Situated in the highly sought-after village of Shevington, this well-presented two-bedroom semi-detached true bungalow offers comfortable, low-maintenance living within walking distance of local shops and amenities. Ideal for those seeking a peaceful yet convenient location, the property has been well cared for and includes several recent updates, including a brand-new roof completed in December 2024 and a modern boiler installed approximately 4 years ago.


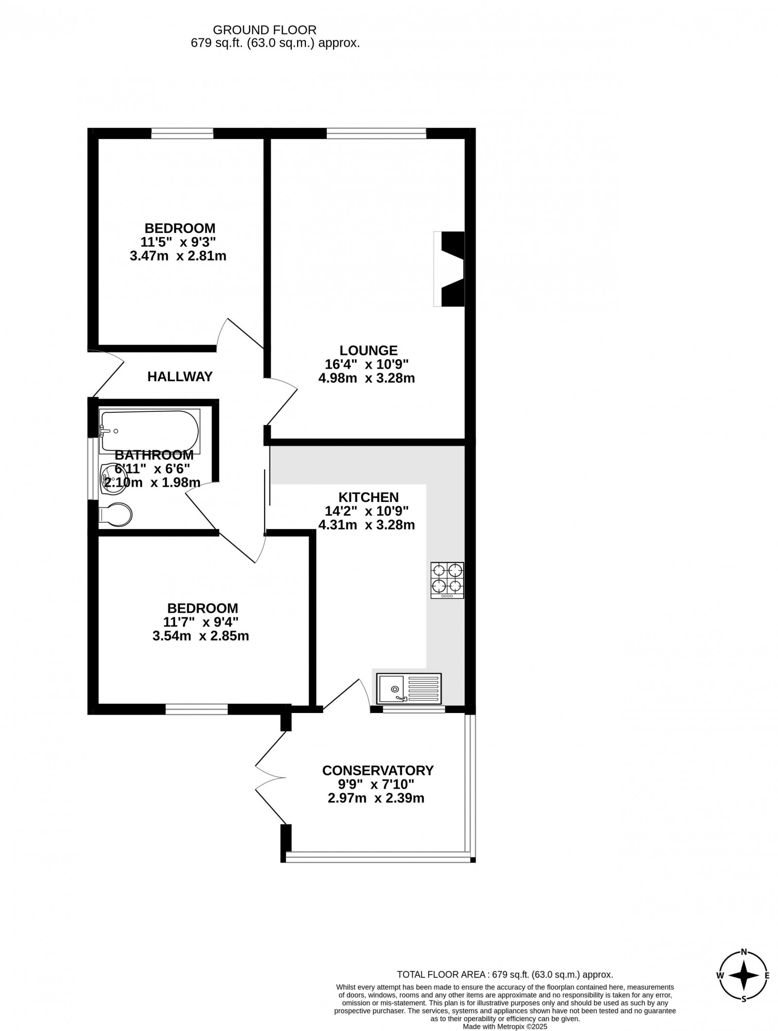
Set back from the road, the property boasts a generous low-maintenance front garden with attractive gravel and rockery borders, as well as a long driveway providing ample off-road parking and leading to a single brick-built garage. Upon entering, you are welcomed into a spacious entrance hallway, which leads through to a bright and airy lounge at the front of the property. The lounge benefits from a large window that floods the space with natural light and a charming fireplace with a gas fire, creating a warm and inviting atmosphere.


The kitchen is a good size and fitted with a range of units, including an integrated oven and hob, while the adjoining conservatory at the rear provides a relaxing additional living space with tiled flooring and views over the garden. There are two large double bedrooms; the front-facing bedroom features a full range of fitted wardrobes, while the rear bedroom overlooks the private garden, making it ideal as a guest room or home office.


The bathroom is fully equipped with a shower over the bath, vanity sink unit, WC, and a heated towel rail.



Externally, the rear garden is south-facing, secure, and low maintenance, with a combination of gravel and patio areas—perfect for enjoying the sunshine or entertaining outdoors.


This lovely bungalow is a rare find in such a desirable location and is ideal for downsizers, professionals, or anyone looking for single-level living close to village amenities and is offered with no onward chain.

Floorplan for Martland Avenue, Wigan
  • Semi Detached True Bungalow
  • Two Bedrooms
  • Close to local amenities in Shevington
  • Garden Front and Rear
  • Offered With No Chain

Book a Viewing


1About You


2Pick a Day


  1. This Week
  2. Next Week
  3. In a Fortnight

3Select a Time


This site is protected by reCAPTCHA and the Google Privacy Policy and Terms of Service apply.