Tracy Phillips Estates
Situated along a quiet residential street, close to the centre of Standish village, this attractive true bungalow has been lovingly cared for by its current owners. True bungalows are increasingly rare, and this property occupies a particularly generous and appealing plot, benefitting from extensive off-road parking to the front.
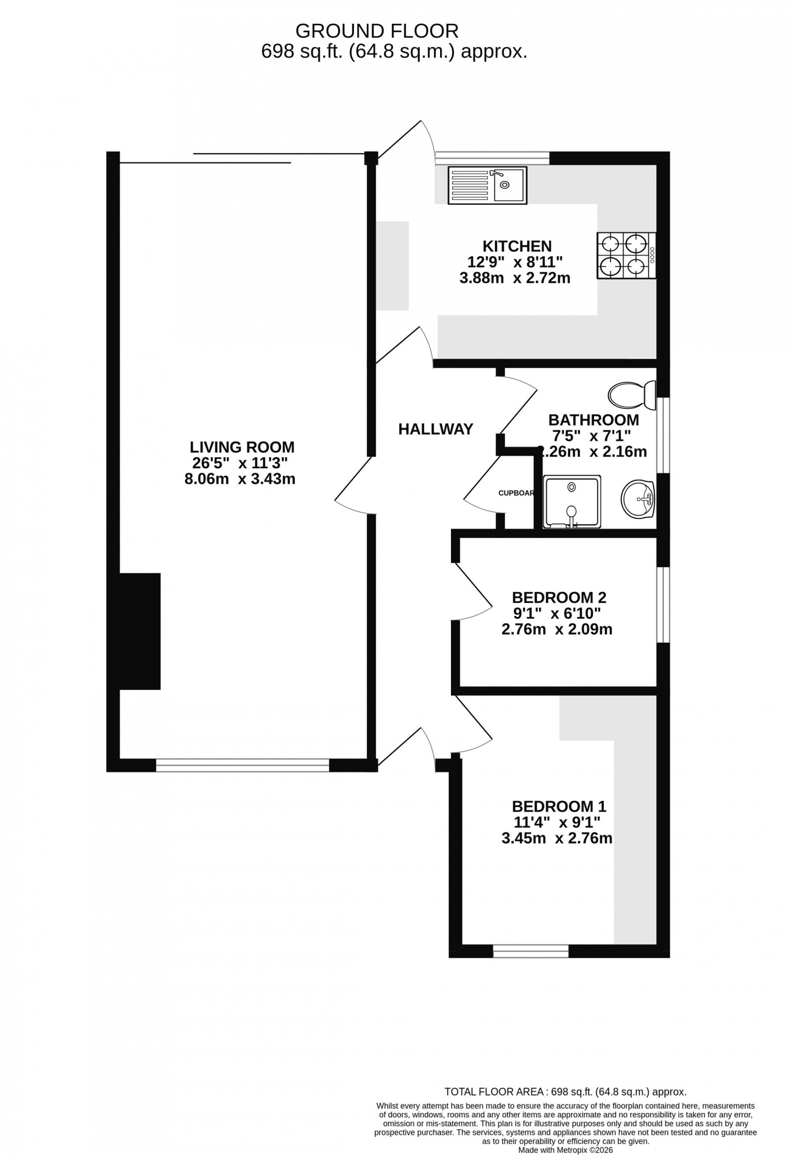
The accommodation briefly comprises a welcoming entrance hallway and a well-proportioned kitchen offering space for appliances, including double ovens, an electric hob with overhead extractor and a washing machine. The kitchen also provides direct access to the rear garden. The spacious lounge and open-plan dining area create an excellent living and entertaining space, filled with natural light. To the front of the property are two bedrooms, one benefitting from fitted storage. The accommodation is completed by a well-appointed shower room incorporating a walk-in shower, wash hand basin and WC.
Externally, the property offers well-maintained gardens including a cosy summer house, ample driveway parking and a detached garage. The front of the bungalow features lawns and well-stocked borders, along with a flagged driveway leading to the detached garage. Additional driveway space is available to the side of the property, with the garage positioned
towards the rear of the plot.
Standish village is within comfortable walking distance and provides an excellent range of amenities including shops, a post office, library and leisure facilities, as well as a good selection of cafés, restaurants and bars. The area also benefits from convenient access to motorway and rail networks across the North West.
Viewings of this lovely true bungalow are now welcomed and highly recommended.
Floorplan for Sheldon Avenue, Standish, Wigan
EPC Graph for Sheldon Avenue, Standish, Wigan
  • True bungalow situated on a quiet residential street within walking distance of Standish village
  • Generous plot with extensive off-road parking and a detached garage positioned to the rear
  • Spacious lounge with open-plan dining area, providing a bright and versatile living space
  • Two bedrooms and a well-appointed shower room
  • Close to a wide range of village amenities, cafés and restaurants, with excellent motorway and rail links nearby
  • Early viewing is recommended

Book a Viewing

This site is protected by reCAPTCHA and the Google Privacy Policy and Terms of Service apply.