Tracy Phillips Estates
This beautifully maintained true bungalow has been thoughtfully extended to the rear, creating a spacious and versatile three-bedroom home. Lovingly cared for by the current owner, the property offers a welcoming atmosphere throughout and is ready to move straight into.

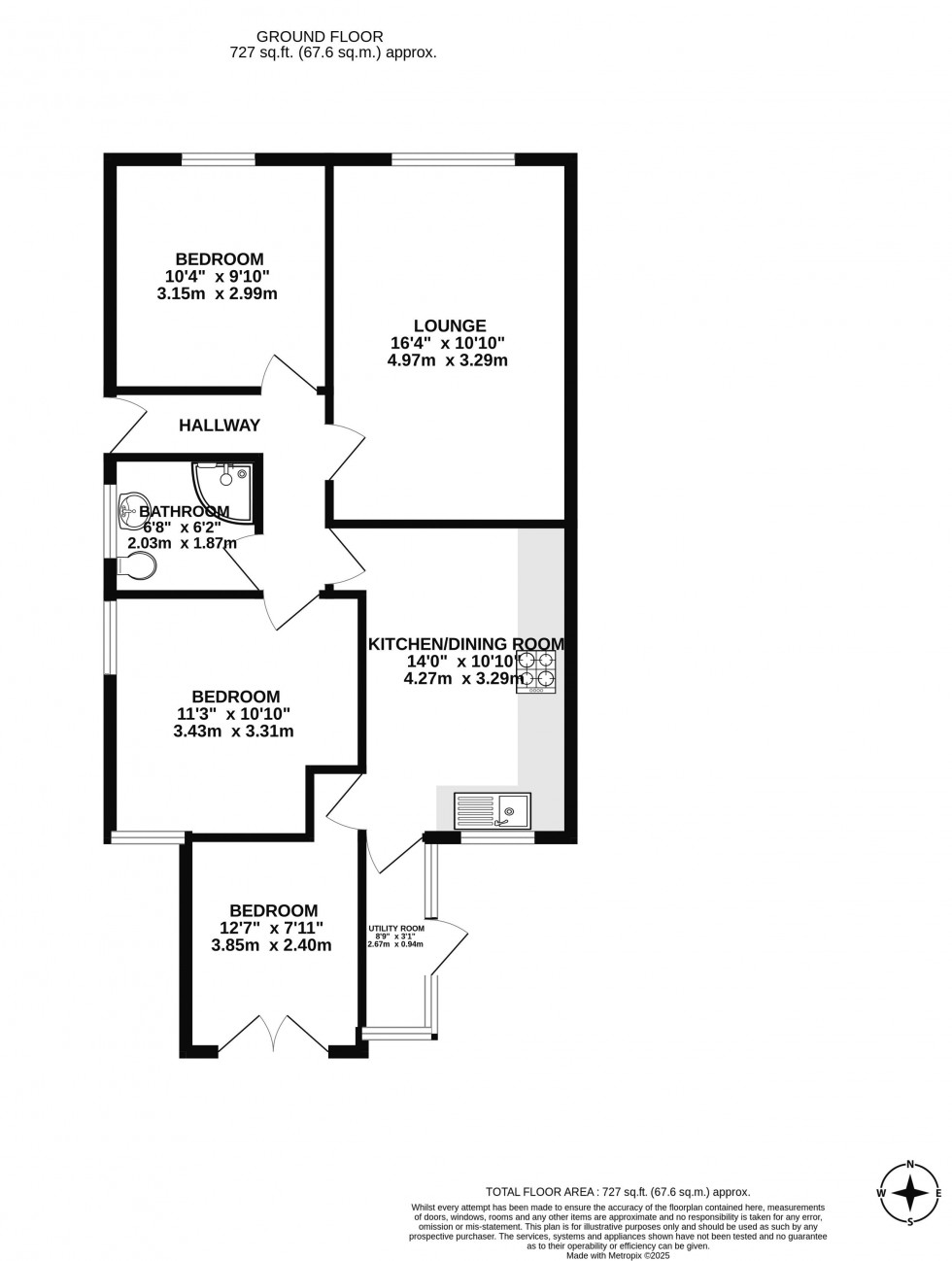
The accommodation briefly comprises an entrance hallway which offers a warm welcome and leads to a bright and airy lounge featuring a large front-facing window that fills the room with natural light. The dining kitchen is well-equipped with a range of fitted cupboards, integrated gas hob and oven, and ample space for family dining. A rear porch provides a useful boot room area. There is a good-sized master bedroom with two windows, and Bedroom Two is a generous double bedroom to the front with fitted wardrobes and drawers. Bedroom Three is currently used as a second reception room and features patio doors opening directly onto the garden. There is also a recently upgraded bathroom fitted with a large corner shower, WC, wash basin, and heated towel rail.

Externally, there is a neatly presented front garden and recently renewed driveway (2024) to the side that provides off-road parking and leads to a detached single garage (situated at the rear). The rear garden offers a delightful retreat with paved seating areas, mature shrubs and colourful planting.

The property has benefitted from a new roof within the last five years, ensuring peace of mind for the new owner.

Situated in the highly desirable village of Shevington, the bungalow is within easy reach of local shops, cafés, excellent schools, and scenic countryside walks, while Junction 27 of the M6 is just a five-minute drive away, offering convenient commuter links.

Viewing is highly recommended.
Floorplan for Martland Avenue, Shevington, Wigan
EPC Graph for Martland Avenue, Shevington, Wigan
  • Semi Detached True Bungalow
  • Three Bedrooms
  • Lounge and Dining KItchen
  • Bedroom Threre is Currently being used as a Dining Room
  • Driveway and Detached Garage to the Rear
  • Gardens to Front and Rear
  • Popular Village Location

Book a Viewing


1About You


2Pick a Day


  1. This Week
  2. Next Week
  3. In a Fortnight

3Select a Time


This site is protected by reCAPTCHA and the Google Privacy Policy and Terms of Service apply.