Tracy Phillips Estates

Positioned within the highly desirable estate in Appley Bridge, this impressive four bedroom, detached family home offers the perfect blend of convenience and natural beauty. With walks from your doorstep to Fairy Glen Woods and the Leeds to Liverpool Canal, and just five minutes from Appley Bridge train station and Junction 27 of the M6, the location is ideal for commuters and nature lovers alike. The property benefits from a double driveway and a well kept front garden, creating a welcoming first impression.



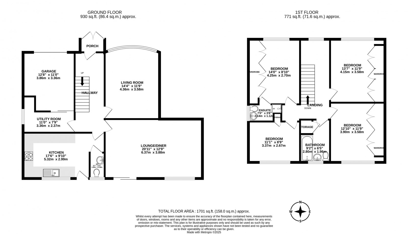
A spacious entrance hallway sets the tone for the home, featuring a useful under-stairs storage cupboard and a beautiful oak spindle staircase. To the front, the lounge enjoys a bay window and fireplace, while the large lounge/diner at the rear offers a wonderful space for family living and entertaining, complete with patio doors onto the garden and an additional fireplace. The ground floor also includes a cloakroom with WC and vanity basin, a kitchen fitted with a range of units and a door to the rear garden, and a practical utility room plumbed for a washer and dryer, with space for a freezer and access to the integral garage.


 


 The first-floor gallery landing provides an attractive open area at the front—ideal as a study nook or reading space. There are four double bedrooms, including a spacious master with fitted wardrobes, leading to an impressive en suite featuring a shower, glass bowl vanity unit, WC and heated towel rail. The second and third bedrooms both benefit from fitted wardrobes, while the fourth has previously been used as a study but remains a comfortable double room. Completing the upper level is the family bathroom, fitted with a shower over the bath, WC, vanity sink unit, and heated towel rail.


 


Outside, the secure and private rear garden is east-facing, offering a peaceful setting with a lawn and patio area—perfect for relaxing or entertaining.

Floorplan for Glenside, Appley Bridge, Wigan
EPC Graph for Glenside, Appley Bridge, Wigan
  • Detached Four Bedroom Extended House
  • Over 1500sq ft Of Living Accomodation
  • Positioned In The Sought After Area Of Appley Bridge
  • Private Secure Rear Garden
  • Viewing is Highly Recommended

Book a Viewing

This site is protected by reCAPTCHA and the Google Privacy Policy and Terms of Service apply.