Tracy Phillips Estates

This well maintained three bedroom detached house is
nestled on a sought after estate in the heart of Appley Bridge. With
scenic local walks on the doorstep, excellent transport links including Appley
Bridge train station just five minutes away, and easy access to junction 27 of
the M6, the location is ideal for commuters and families alike. The
area benefits from well regarded schools and a welcoming village
community atmosphere.


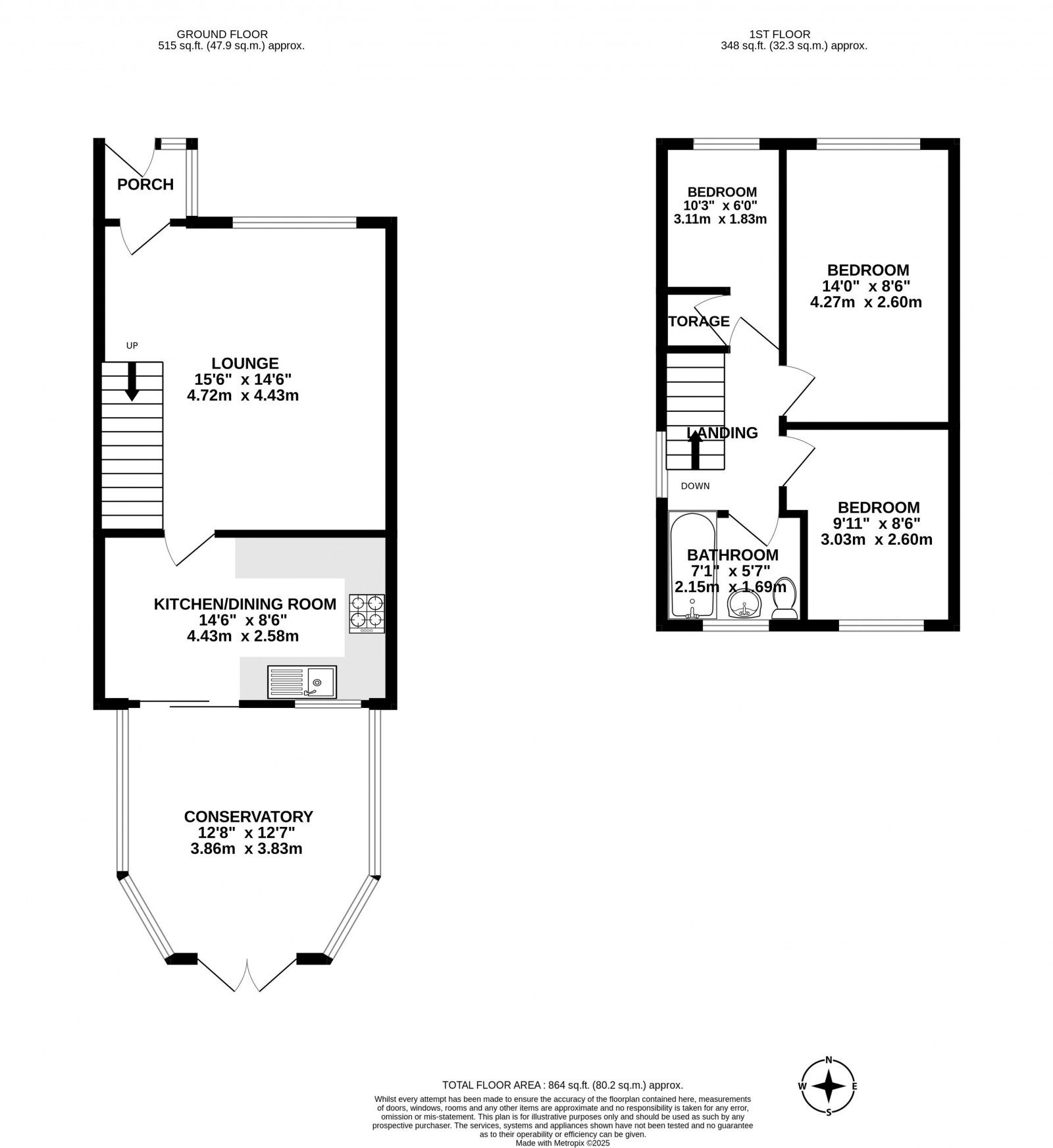
Entering the property, you are welcomed by an entrance
porch leading into a spacious, bright lounge featuring solid oak flooring and a
central gas fireplace. The kitchen is fitted with a range of wall and base
units, complete with a gas hob and oven, and offers the added convenience of an
understairs storage cupboard. Patio doors open into a generously sized
conservatory at the rear, ideal as a second reception room or dining space,
with tiled flooring, a radiator, and views of the garden.


Upstairs, the home offers three bedrooms. The master
bedroom at the front is a comfortable double with fitted wardrobes, while the
second double bedroom overlooks the rear garden. The third bedroom, also
positioned to the front, is a single room featuring a useful storage cupboard
that houses the hot water cylinder. The family bathroom is well-appointed with
a shower over the bath, WC, sink, and a heated towel rail.


Externally, the property has a low-maintenance tarmac
front garden and driveway. The enclosed rear garden features a patio and lawn
area, with gated access to both sides of the house and a large shed providing
excellent storage. Additional benefits include full double glazing, a boiler
with warranty until 2027, and vacant possession, making this home move-in
ready.


This delightful property offers a fantastic
opportunity for families, professionals, or anyone looking to settle in a
well-connected and friendly location. With possibilities to extend (subject to
the necessary planning permissions).


 Early viewing
is highly recommended.


 
Floorplan for Abbeydale, Appley Bridge, Wigan
EPC Graph for Abbeydale, Appley Bridge, Wigan
  • Detached House
  • Three Bedrooms
  • Driveway Parking
  • Secure Rear Garden
  • Offered With No Chain

Book a Viewing


1About You


2Pick a Day


  1. This Week
  2. Next Week
  3. In a Fortnight

3Select a Time


This site is protected by reCAPTCHA and the Google Privacy Policy and Terms of Service apply.