Tracy Phillips Estates
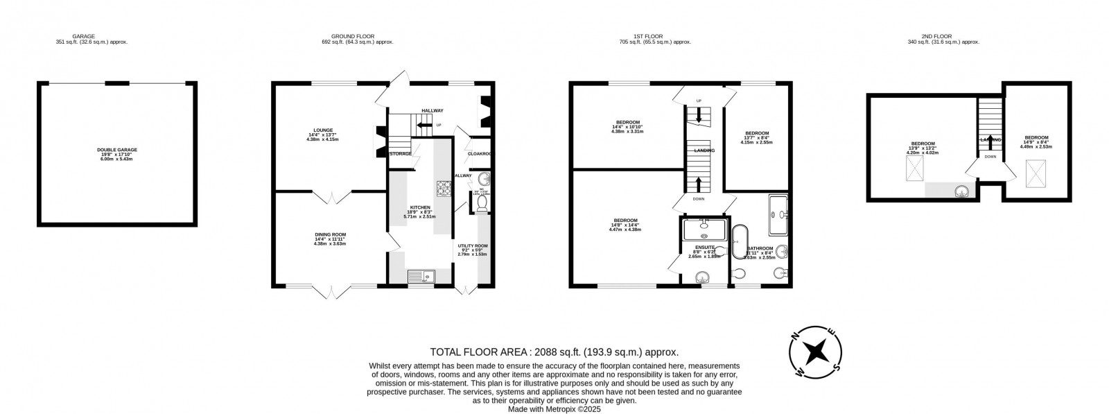
A truly stunning Grade II listed double-fronted stone cottage, believed to have been built circa 1746. Originally two separate dwellings, this charming property has been thoughtfully combined into a spacious single home, beautifully presented and immaculately cared for both inside and out. Full of unique character features, the cottage enjoys breathtaking views over open fields and offers generous accommodation across three floors. The property extends to approximately 2088 sq. ft and comprises five double bedrooms, including a main bedroom with delightful countryside views and a modern en-suite shower room.
The ground floor offers a welcoming reception hallway with feature fire surround, opening onto both the cosy lounge (complete with cast-iron fireplace) and the elegant dining room. Double doors from the dining room lead out to the garden, creating the perfect space for al fresco dining and relaxation while overlooking the stunning grounds and open countryside beyond. The kitchen has been refurbished in a smart yet elegant style and includes double Neff ovens, a separate utility/laundry room, and a ground-floor cloakroom.
The first floor offers three double bedrooms with abundant fitted wardrobes and a heritage-style en-suite, complemented by a recently installed modern five-piece family bathroom featuring a designer slipper bath and walk-in shower. The top floor provides two additional rooms, one of which is currently used as an office, accessed via a charming spindle staircase.
Externally, the property is equally impressive. A detached double garage is accompanied by off-road parking for two cars, with a tarmac driveway and a winding stone path leading to the property. The front garden is beautifully landscaped with gravel beds, mature planting and a stone wall border. To the rear, a delightful garden combines an Indian stone patio, low-maintenance lawns, gravel beds and open fencing, all set against the backdrop of open countryside.
This exceptional property has been carefully and lovingly refurbished by the current owners to exacting standards, resulting in a flowing, versatile floor plan ideal for modern family living while retaining its historic charm.
Viewings are highly recommended to fully appreciate this unique and beautifully presented home.
Floorplan for Dukes Row, Aspull, Wigan
  • Grade II Listed Former Miners’ Double Fronted Cottage
  • Generous Accommodation Approximately 2088 sq ft across Three Floors
  • Elegant Living Spaces including Three Reception Rooms and Five Bedrooms
  • Exceptional Gardens and Parking including Detached Double Garage and off-road parking for two cars
  • Lovingly Refurbished to Exacting Standards, combining Historic Charm with Modern Comforts
  • Viewings are Highly Recommended to fully Appreciate this Unique and Beautifully Presented Home

Book a Viewing

This site is protected by reCAPTCHA and the Google Privacy Policy and Terms of Service apply.