Tracy Phillips Estates


Resting on the highly desirable Worthington Park development in Standish, this modern three-bedroom mews property offers well-proportioned accommodation arranged over three floors. The home is ideally positioned within close proximity to the bustling centre of Standish village, excellent local schools, and convenient motorway links to surrounding towns, while also enjoying easy access to beautiful countryside walks.


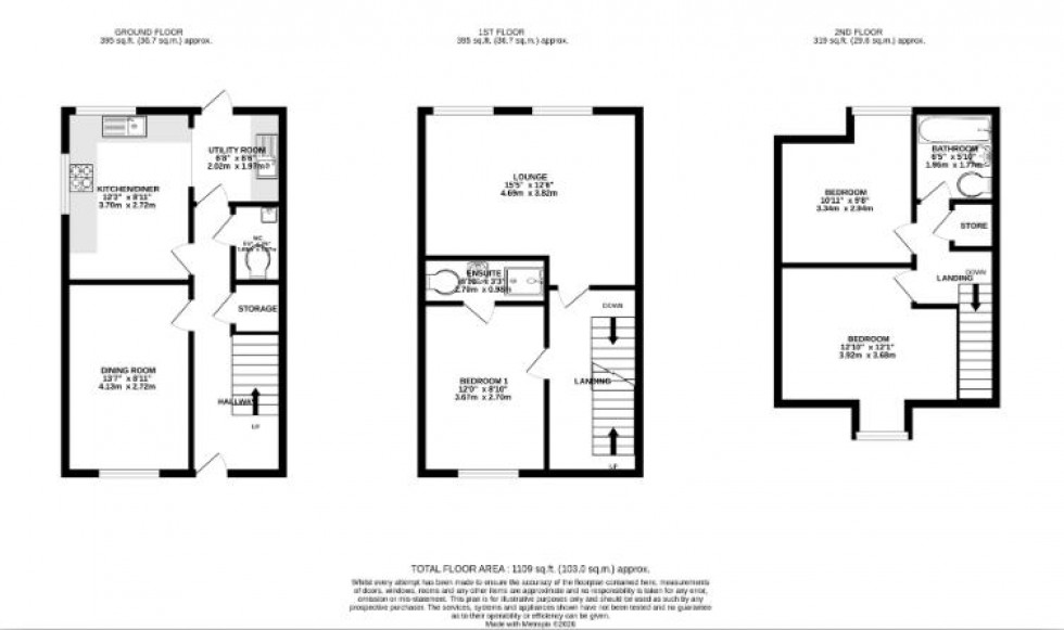
To the front of the property there are two allocated parking spaces, along with a gated entrance leading to a pathway and the front door. Upon entering, the welcoming entrance hallway provides access to a useful under-stairs storage cupboard and a ground floor cloakroom fitted with WC and wash hand basin.


The ground floor also features a well-appointed dining kitchen, fitted with a range of cupboards and benefiting from a door leading out to the rear garden. An archway leads through to the utility room, which includes additional fitted cupboards and plumbing for a washing machine, providing excellent practicality for everyday living.


To the first floor, there is a spacious lounge positioned to the rear of the property, enjoying dual windows that allow for plenty of natural light. The master bedroom is located to the front and is generously sized, featuring fitted wardrobes and an en-suite shower room with shower enclosure, WC, and wash hand basin.


The second floor offers two further spacious double bedrooms along with a family bathroom, fitted with a bath, WC, and wash hand basin, completing the internal accommodation.


Externally, the rear garden is laid mainly to lawn with a patio area, and includes a garden shed providing useful storage. The garden backs onto a wall, with Mayflower Cottages located beyond.


This attractive home combines modern living with a convenient and highly regarded location, making it an excellent choice for families and professionals alike. Early viewing is recommended to appreciate the space and setting on offer.

Floorplan for Trevore Drive, Standish, Wigan
EPC Graph for Trevore Drive, Standish, Wigan
  • Modern Three Storey Mews Property
  • Two Reception Rooms
  • Three Bedrooms and Two Bathrooms
  • Secure Rear Garden
  • Allocated Parking For 2 Cars and Additional On Street Parking
  • Secure Rear Garden

Book a Viewing

This site is protected by reCAPTCHA and the Google Privacy Policy and Terms of Service apply.