Tracy Phillips Estates


Tucked away in a quiet cul-de-sac in the heart of Standish village, this beautifully presented three-bedroom home offers spacious and versatile accommodation ideal for modern family living.


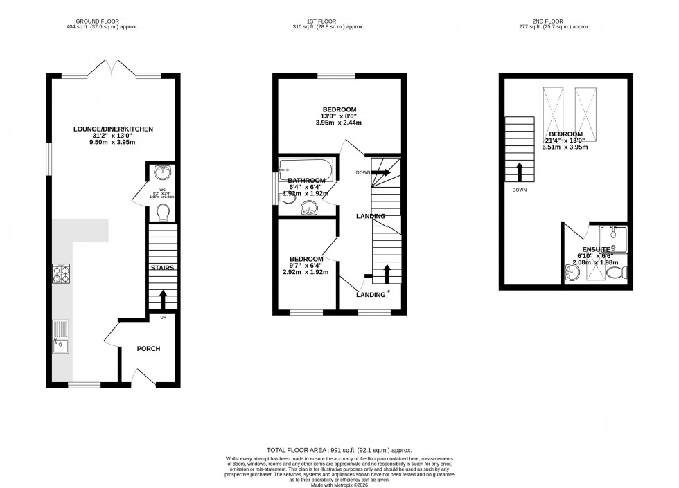
The property benefits from driveway parking for two cars to the side, additional on-street parking, and a charming front garden that enhances its kerb appeal. Upon entering, you are welcomed by an entrance hallway leading into a bright and stylish open-plan kitchen and living space.


The contemporary kitchen features white gloss handleless units and a full range of integrated appliances, including a fridge freezer, washing machine, dishwasher, gas hob and oven. The space flows seamlessly into the dining area and through to the impressive rear lounge, complete with Velux roof lights and French doors that open out to the rear garden, creating a light-filled and sociable living environment. A convenient ground floor cloakroom with WC and wash basin completes the layout.


The rear garden enjoys a sunny aspect and has been designed for low maintenance, featuring an artificial lawn, patio seating area, and a useful garden shed — perfect for outdoor entertaining and family relaxation.


To the first floor, there is a spacious double bedroom to the rear, a generous single bedroom to the front, and a modern family bathroom fitted with a shower over the bath, vanity sink unit, WC, and heated towel rail.


Occupying the entire second floor is the stunning master bedroom, featuring character windows and a private en-suite shower room with shower, WC and wash basin, offering a peaceful retreat.


Perfectly positioned close to the centre of Standish village, the property enjoys access to excellent local schools and a vibrant high street offering a variety of cafés, restaurants and amenities.


Early viewing is highly recommended.

Floorplan for Bracken Close, Standish,  Wigan
EPC Graph for Bracken Close, Standish,  Wigan
  • Semi Detached House on Three Levels
  • Three Bedrooms
  • Open Plan Living
  • Contemporary Style Kitchen
  • Gardens to Front and Rear
  • Off Road Parking
  • Viewing is Highly Recommended

Book a Viewing

This site is protected by reCAPTCHA and the Google Privacy Policy and Terms of Service apply.