Tracy Phillips Estates
Elegant Second-Floor Penthouse Apartment in the Heart of Standish Village - offered for sale CHAIN FREE

Situated within a peaceful and impeccably maintained residential development, this beautifully presented second-floor penthouse apartment combines comfort, security, and modern living in an enviable location. Just a short stroll from the charming and highly desirable Standish Village, the property is perfectly suited to those seeking a stylish, low-maintenance home in a tranquil setting. Extending to an impressive 1,218 sq ft, the apartment is immaculately presented throughout and offers a wonderfully bright and spacious interior.

A welcoming entrance hallway sets the tone, complete with a generous fitted storage cupboard and leading through to the expansive open-plan living space. The heart of the home is the superb open-plan lounge, dining and kitchen area, thoughtfully designed for both relaxation and entertaining. The contemporary fitted kitchen features integrated appliances and flows seamlessly into the living and dining space. A charming Juliet balcony enhances the room, allowing natural light to flood in while framing delightful countryside views. From the lounge and both bedrooms, residents can enjoy far-reaching views across rolling fields towards Elnup Woods, creating a calm and picturesque backdrop to everyday living. The principal bedroom is generously proportioned and benefits from these beautiful views, along with a well-appointed en-suite shower room. The second bedroom, also enjoying scenic outlooks, is served by a stunningly upgraded main bathroom. This luxurious space features a freestanding bath, vanity wash basin, wall-hung WC, sleek tiling, and a heated towel rail, while a Velux roof light fills the room with natural light.

Set within a small and exclusive complex with designated parking, the apartment is ideally located for easy access to Standish’s excellent local amenities, including independent shops, restaurants, bars, the post office, library and leisure facilities. Superb motorway connections also provide convenient links to Manchester, Liverpool, and beyond. For nature lovers, the surrounding countryside offers an abundance of scenic walks, including nearby Elnup Woods, famed for its spectacular display of bluebells each spring.

Combining space, style, and an exceptional location, this outstanding apartment truly ticks every box.

Early viewing is highly recommended.
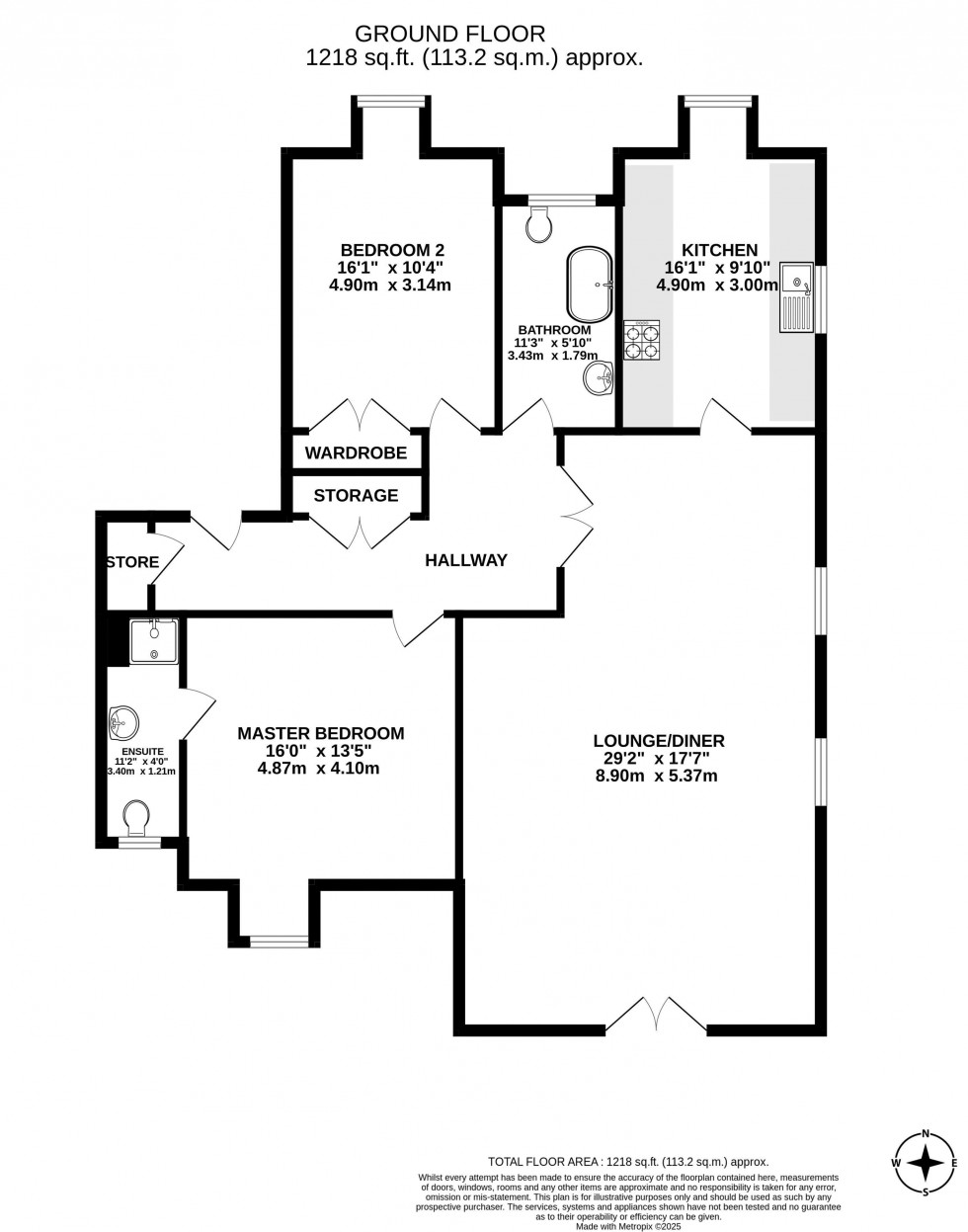
Floorplan for Beacon View, Standish, Wigan
EPC Graph for Beacon View, Standish, Wigan
  • Immaculately presented second-floor penthouse apartment extending to an impressive 1,218 sq ft, set within a quiet and well-maintained residential development.
  • Spacious open-plan living, dining and kitchen area featuring a modern fitted kitchen with integrated appliances and a charming Juliet balcony allowing plenty of natural light.
  • Stunning countryside views over rolling fields towards Elnup Woods, enjoyed from the lounge as well as both the master and second bedrooms.
  • Generous principal bedroom with en-suite shower room, plus a well-proportioned second bedroom served by a beautifully upgraded bathroom with freestanding bath, vanity basin, and Velux roof light
  • Welcoming entrance hallway with excellent built-in storage, offering a bright and practical layout ideal for comfortable, low-maintenance living.
  • Prime location within walking distance of Standish Village amenities, including shops, restaurants, bars, and leisure facilities, with excellent motorway links to Manchester, Liverpool, and beyond.
  • CHAIN FREE

Book a Viewing

This site is protected by reCAPTCHA and the Google Privacy Policy and Terms of Service apply.