Tracy Phillips Estates
This immaculate three-bedroom semi-detached bungalow is situated in the highly desirable village of Shevington, offering beautiful countryside walks right on the doorstep, along with convenient access to local amenities and eateries. The property is ideally located within a 10-minute drive of Junction 27 of the M6, Gathurst Train Station and Shevington Village. The true bungalow was completely refurbished approximately three years ago to a very high standard including new electrics, kitchen, bathroom and driveway and is in ready to move in to condition.

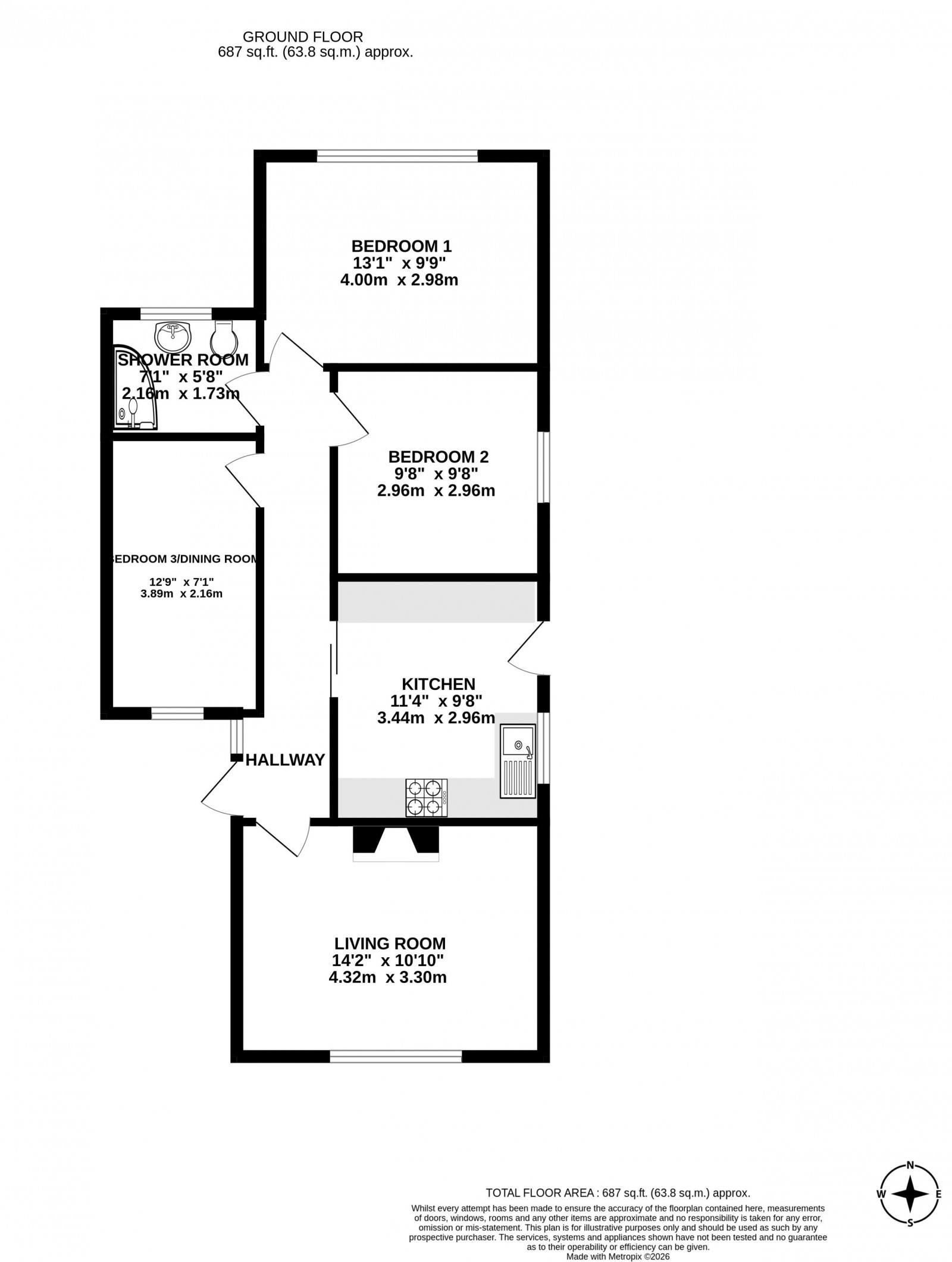
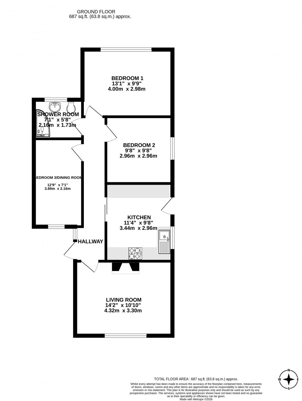
The home benefits from driveway parking and a single detached garage. Upon entering, you are welcomed into a hallway leading to a bright and inviting lounge at the front of the property, complete with a fireplace. The kitchen has been newly fitted and features an integrated oven and hob, with plumbing in place for both a washing machine and dryer. The master bedroom is a spacious double positioned at the rear, enjoying views over the garden. The second bedroom is also a comfortable double, while the third bedroom is currently utilised as a dining room, offering flexibility of use. The bathroom has been newly updated to a high standard and includes a walk-in wet room style shower, vanity hand basin, and WC.

Externally, the rear garden is designed for low maintenance, featuring a flagged patio area and raised beds.

This property is offered with no onward chain.
Floorplan for Kilburn Drive, Shevington, Wigan
EPC Graph for Kilburn Drive, Shevington, Wigan
  • Three Bedroom Semi Detached Bungalow
  • Recently Refurbished Accommodation
  • Driveway Parking and Single Garage
  • Well Presented and in Ready to Move into Condition
  • Located in Shevington Village
  • No Onward Chain

Book a Viewing

This site is protected by reCAPTCHA and the Google Privacy Policy and Terms of Service apply.