Tracy Phillips Estates


Seven Bespoke Homes. One Rare Opportunity to Find Your Place in the Heart of the Countryside.




Lancaster House Farm is an exclusive new development of just seven executive detached homes, individually crafted by Dorbcrest Homes, one of the area’s most highly regarded family builders.


Set amidst open countryside on the edge of the sought-after village of Charnock Richard, this prestigious collection offers the perfect balance of rural charm and modern convenience. Ideally positioned close to the historic market town of Chorley, with its popular weekly markets and the picturesque Astley Park, the development also benefits from excellent transport links, providing easy access to Manchester, Preston, and Liverpool.


Each home within this unique development has been finished to an exceptional standard, thoughtfully designed to combine contemporary living with a style that complements its beautiful countryside surroundings.


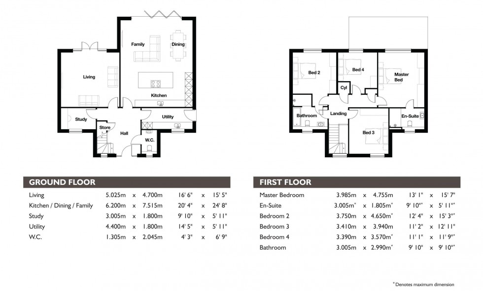
The Farm House - Set in a tranquil rural environment, this home blends country style with upscale living. The heart of the home is a generous open-plan kitchen, family and dining area, with bi-fold doors opening onto a large rear garden framed by countryside views. A separate living room offers a versatile space for formal or casual use, complemented by a utility room and a study. Four double bedrooms include a master with an en-suite and a dedicated dressing room. A detached garage block with generous parking completes the home, resulting in a bright, well laid-out property with thoughtfully designed living areas and landscaped outdoor space.


Seven Bespoke Homes. One Rare Opportunity to Find Your Place in the Heart of the Countryside.


Lancaster House Farm is an exclusive new development of just seven executive detached homes, individually crafted by Dorbcrest Homes, one of the area’s most highly regarded family builders.


Set amidst open countryside on the edge of the sought-after village of Charnock Richard, this prestigious collection offers the perfect balance of rural charm and modern convenience. Ideally positioned close to the historic market town of Chorley, with its popular weekly markets and the picturesque Astley Park, the development also benefits from excellent transport links, providing easy access to Manchester, Preston, and Liverpool.


Each home within this unique development has been finished to an exceptional standard, thoughtfully designed to combine contemporary living with a style that complements its beautiful countryside surroundings.




Seven Bespoke Homes. One Rare Opportunity to Find Your Place in the Heart of the Countryside.


Lancaster House Farm is an exclusive new development of just seven executive detached homes, individually crafted by Dorbcrest Homes, one of the area’s most highly regarded family builders.


Set amidst open countryside on the edge of the sought-after village of Charnock Richard, this prestigious collection offers the perfect balance of rural charm and modern convenience. Ideally positioned close to the historic market town of Chorley, with its popular weekly markets and the picturesque Astley Park, the development also benefits from excellent transport links, providing easy access to Manchester, Preston, and Liverpool.


Each home within this unique development has been finished to an exceptional standard, thoughtfully designed to combine contemporary living with a style that complements its beautiful countryside surroundings.




Seven Bespoke Homes. One Rare Opportunity to Find Your Place in the Heart of the Countryside.


Lancaster House Farm is an exclusive new development of just seven executive detached homes, individually crafted by Dorbcrest Homes, one of the area’s most highly regarded family builders.


Set amidst open countryside on the edge of the sought-after village of Charnock Richard, this prestigious collection offers the perfect balance of rural charm and modern convenience. Ideally positioned close to the historic market town of Chorley, with its popular weekly markets and the picturesque Astley Park, the development also benefits from excellent transport links, providing easy access to Manchester, Preston, and Liverpool.


Each home within this unique development has been finished to an exceptional standard, thoughtfully designed to combine contemporary living with a style that complements its beautiful countryside surroundings.


Floorplan for The Farm House Preston Road, Charnock Richard, Chorley
  • Launch Weekend Your first opportunity to explore inside – don’t miss it with the opening weekend on Saturday 2nd, Sunday 3rd and Bank Holiday Monday 4th May 10.30am - 5.30PM
  • Bespoke designer kitchens with hand-painted units, quartz worktops, soft-close drawers, and a choice of Quooker tap with Blanco sink
  • Modern efficiency & security including air source heat pump, underfloor heating throughout, double glazing, alarm system, smoke detectors, and multi-point locking doors
  • Premium integrated appliances including Miele ovens, induction hob, extractor, fridge/freezer, dishwasher, plus wine/drinks chiller and integrated bin system
  • Advanced electrical specification with fibre-to-premises, Cat 6 Ethernet and TV points to key rooms, and smart EV charging point (Rolec/Qubev)
  • High-quality bathrooms featuring Roca sanitaryware, contemporary brassware, vanity units with LED mirrors, and chrome towel radiators
  • Stylish interiors with white-painted walls, gloss woodwork, cottage-style doors, chrome fittings, and a feature staircase with oak detailing
  • Attractive exteriors & peace of mind with landscaped gardens, porcelain patios, block-paved driveway, quality fencing, Rockdoor entrance, and 10-year NHBC warranty

Book a Viewing

This site is protected by reCAPTCHA and the Google Privacy Policy and Terms of Service apply.