Tracy Phillips Estates


Seven Bespoke Homes. One Rare Opportunity to Find Your Place in the Heart of the Countryside.




Lancaster House Farm is an exclusive new development of just seven executive detached homes, individually crafted by Dorbcrest Homes, one of the area’s most highly regarded family builders.


Set amidst open countryside on the edge of the sought-after village of Charnock Richard, this prestigious collection offers the perfect balance of rural charm and modern convenience. Ideally positioned close to the historic market town of Chorley, with its popular weekly markets and the picturesque Astley Park, the development also benefits from excellent transport links, providing easy access to Manchester, Preston, and Liverpool.


Each home within this unique development has been finished to an exceptional standard, thoughtfully designed to combine contemporary living with a style that complements its beautiful countryside surroundings.



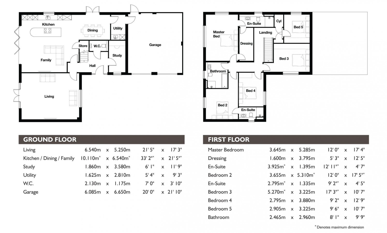
Horseshoe Barn - Occupying one of the largest plots on the development, this beautiful home offers spacious and well-considered living throughout. The open-plan kitchen, dining and family area forms the hub of the home, with bi-fold doors opening onto a generous rear garden with countryside views. A separate living room provides flexibility for entertaining or relaxation, alongside a study and utility room. Five large double bedrooms include a master suite with an en-suite shower room and a dressing room. An attached double garage with ample parking completes this distinguished property, combining practical modern living with an exceptional garden setting.

Floorplan for Horseshoe Barn, Preston Road, Charnock Richard, Chorley
  • Launch Weekend Your first opportunity to explore inside – don’t miss it with the opening weekend on Saturday 2nd, Sunday 3rd and Bank Holiday Monday 4th May 10.30am – 5.30PM
  • Bespoke designer kitchens with hand-painted units, quartz worktops, soft-close drawers, and a choice of Quooker tap with Blanco sink
  • Modern efficiency & security including air source heat pump, underfloor heating throughout, double glazing, alarm system, smoke detectors, and multi-point locking doors
  • Premium integrated appliances including Miele ovens, induction hob, extractor, fridge/freezer, dishwasher, plus wine/drinks chiller and integrated bin system
  • Advanced electrical specification with fibre-to-premises, Cat 6 Ethernet and TV points to key rooms, and smart EV charging point (Rolec/Qubev)
  • High-quality bathrooms featuring Roca sanitaryware, contemporary brassware, vanity units with LED mirrors, and chrome towel radiators
  • Stylish interiors with white-painted walls, gloss woodwork, cottage-style doors, chrome fittings, and a feature staircase with oak detailing
  • Attractive exteriors & peace of mind with landscaped gardens, porcelain patios, block-paved driveway, quality fencing, Rockdoor entrance, and 10-year NHBC warranty

Book a Viewing

This site is protected by reCAPTCHA and the Google Privacy Policy and Terms of Service apply.