Tracy Phillips Estates
Located within Dawber Delph, one of Appley Bridge’s most exclusive and prestigious developments, this impressive executive detached four-bedroom family home occupies a prime plot on a quiet and highly sought-after cul-de-sac. Offered for sale with no onward chain and vacant possession, the property enjoys elevated views to the front over East Quarry Lake and a tranquil rear setting edged by a babbling brook, creating a rare blend of privacy, scenery and convenience. Dawber Delph comprises just nine individual homes, each unique in design and set alongside mature woodland in the heart of the village. This particular property sits in one of the finest positions within the development and offers approximately 2,144 sq ft of spacious, modern and versatile accommodation, making it an ideal family home.
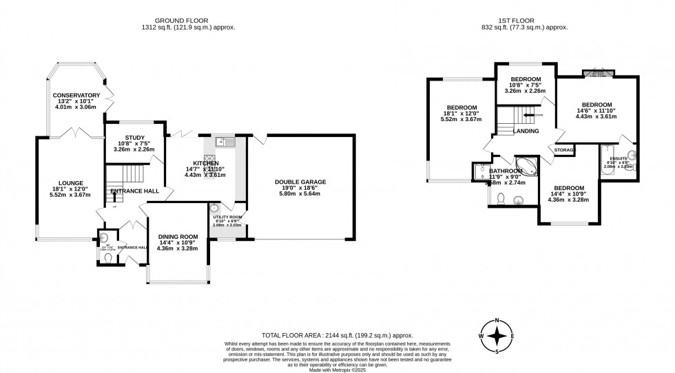
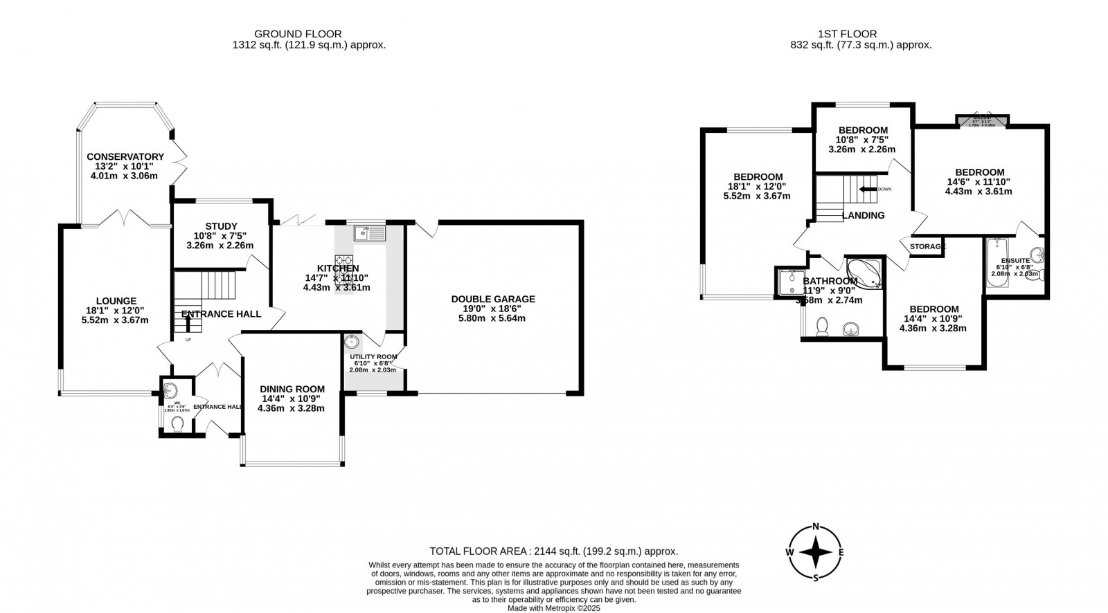
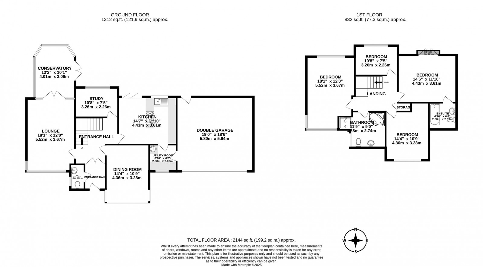
The immaculately presented accommodation briefly comprises a welcoming entrance hallway with returning staircase to the first floor, and a ground floor cloakroom. To the ground floor there is a dual-aspect lounge with a contemporary living flame gas fire and French doors opening into the conservatory with access to the garden, a separate formal dining room, and a dedicated home office/study. The modern kitchen provides an excellent family space and features bi-fold doors leading outside, complemented by a separate utility room with access into the attached garage. To the first floor, a spacious landing leads to the principal bedroom, which benefits from a Juliet-style balcony and a modern three-piece en-suite comprising of a bath with overhead shower, wash hand basin and w.c. There are three further well-proportioned bedrooms, along with a contemporary four-piece family bathroom with Jacuzzi bath completing the internal layout.
Externally, the property is equally impressive. A double-width block paved driveway provides ample off-road parking and leads to an extra-large double garage with light, power, an electric remote-controlled double doors and further vehicular rear garden access. The private rear garden is landscaped and edged by the brook and mature woodlands. There are also additional lawned garden areas to the front and side, enhancing the sense of space and seclusion. The gentle sound of the brook beyond the garden further enhances the peaceful setting.
Situated in the popular village of Appley Bridge, which lies within the Douglas Valley on the borders of Lancashire and Greater Manchester, the property enjoys excellent commuter links via Junction 27 of the M6 and a nearby railway station within walking distance. The village offers a range of amenities, excellent schools and places to dine.
Surrounded by stunning countryside, canal walks and highly regarded schools, this outstanding home combines luxury living with an exceptional location.
Early internal inspection is highly recommended to fully appreciate the size, setting and quality of this superb family residence.
Floorplan for Dawber Delph, Appley Bridge, Wigan
EPC Graph for Dawber Delph, Appley Bridge, Wigan
  • Situated within Dawber Delph, an exclusive development of just nine executive homes in the heart of Appley Bridge
  • Immaculately presented detached family home offering approximately 2,144 sq ft of modern, versatile accommodation
  • Stunning plot edged by a babbling brook, with mature woodland surroundings and a high degree of privacy
  • Spacious layout including formal dining room, study/home office, generous lounge, conservatory and open-plan kitchen/breakfast room with bi-fold doors
  • Four well-proportioned double bedrooms, including a master with Juliet balcony and en-suite, plus family bathroom
  • Landscaped gardens, large driveway and extra-large double garage, close to countryside walks, village amenities, excellent schools, transport links and M6 J27

Book a Viewing

This site is protected by reCAPTCHA and the Google Privacy Policy and Terms of Service apply.