Tracy Phillips Estates
This charming three-bedroom detached true bungalow is situated in a highly desirable location within a popular estate, occupying an elevated position with far-reaching views towards Gathurst. Impeccably maintained by the current owners, the property is well presented and offers a warm, bright, and welcoming atmosphere throughout. Viewing is highly recommended to fully appreciate the position and accommodation on offer.
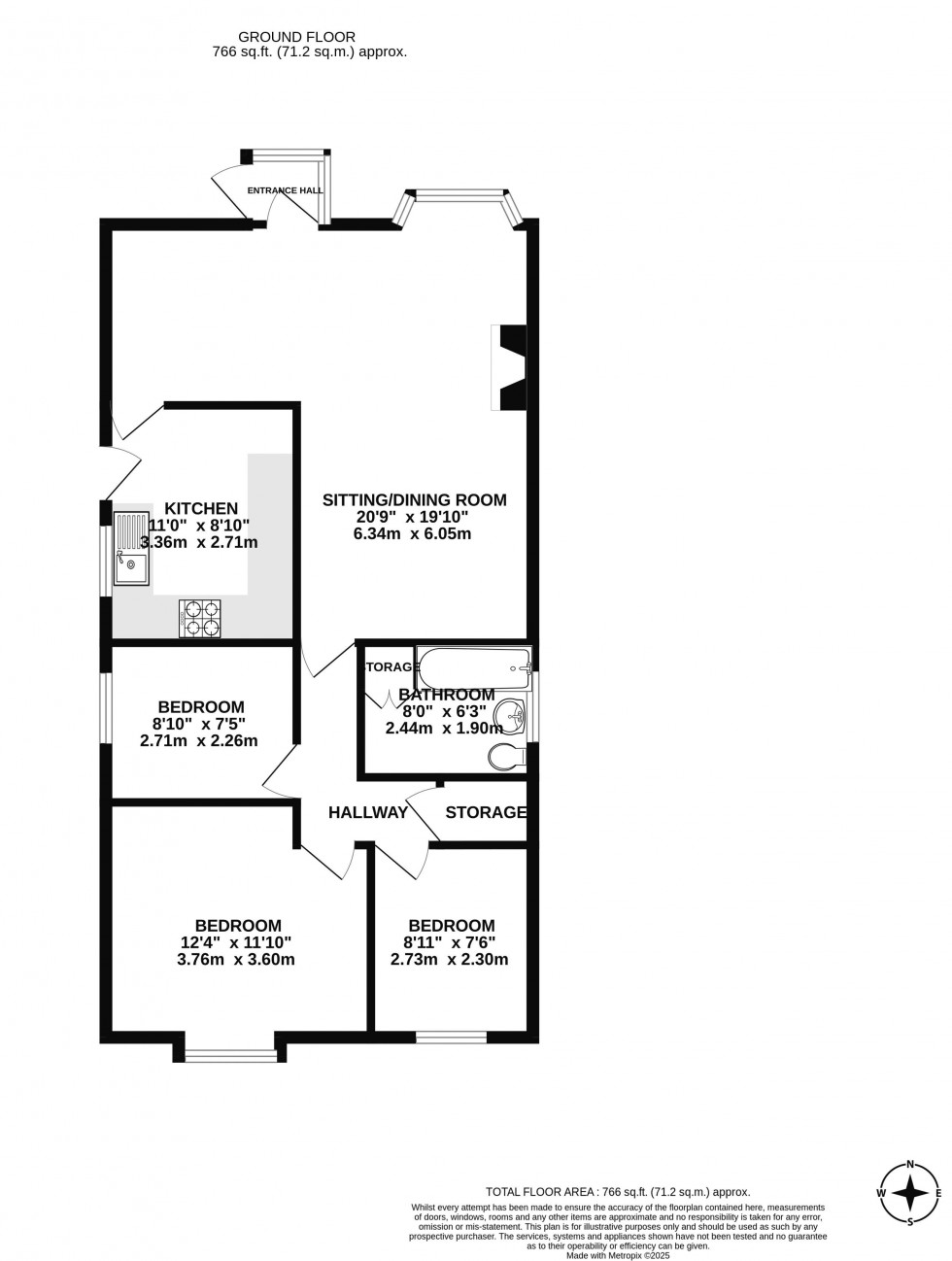
The well-designed floor plan provides a flexible arrangement of living space. Upon entering, you are welcomed into a spacious entrance hall leading to the main reception room. This light-filled, sociable space is ideal for family gatherings, offering ample room for both a lounge and dining area. A central feature fireplace adds warmth and character to the room. The kitchen is fitted with an attractive range of wall and base units complemented by contrasting work surfaces. It includes an integrated oven and hob, along with space for additional appliances, and benefits from a convenient access door leading to the driveway.
All three generously-sized bedrooms are located towards the rear of the property, with two enjoying pleasant views over the rear garden. The bathroom completes the internal accommodation, featuring a three-piece suite comprising a panelled bath with an overhead shower, a low-level W.C. and a wash hand basin, all enhanced by complementary wall tiling.
Externally, the property boasts well-maintained gardens to both the front and rear. The front garden is set behind wrought iron gates and features a lawned area alongside an ample driveway leading to a detached garage. The rear garden offers a peaceful retreat, perfect for enjoying breakfast or an evening drink, with a combination of a lawn and planted beds providing an ideal setting for alfresco dining.
The bungalow benefits from a prime location in a sought-after residential area, making it ideal for commuters with convenient access to rail links and the M6 motorway. The nearby village of Shevington offers a range of amenities including shops, schools, a library, and a rail station.
Offered with no onward chain and vacant possession, this delightful bungalow is now available for viewings through our office. Don't miss the opportunity to make this exceptional property your new home.
Floorplan for Kilburn Drive, Shevington, Wigan
EPC Graph for Kilburn Drive, Shevington, Wigan
  • Detached True Bungalow
  • Three Bedrooms
  • Good Sized Lounge with Dining Area
  • Attractive Fitted Kitchen
  • Gardens to the Front and Rear
  • Detached Garage and Driveway
  • No Chain Delay

Book a Viewing


1About You


2Pick a Day


  1. This Week
  2. Next Week
  3. In a Fortnight

3Select a Time


This site is protected by reCAPTCHA and the Google Privacy Policy and Terms of Service apply.