Tracy Phillips Estates
This handsome, traditional semi-detached home enjoys an elevated position on the prestigious Wigan Lane — one of the area’s most sought-after addresses — ideally situated between the vibrant village of Standish and Wigan’s bustling town centre. Offering approximately 1,204 sq. ft. of accommodation, the property is filled with original character features and offers a generous and versatile layout. While some updating is required, it has clearly been a much-loved family home and presents a wonderful opportunity for its next owners to make it their own.
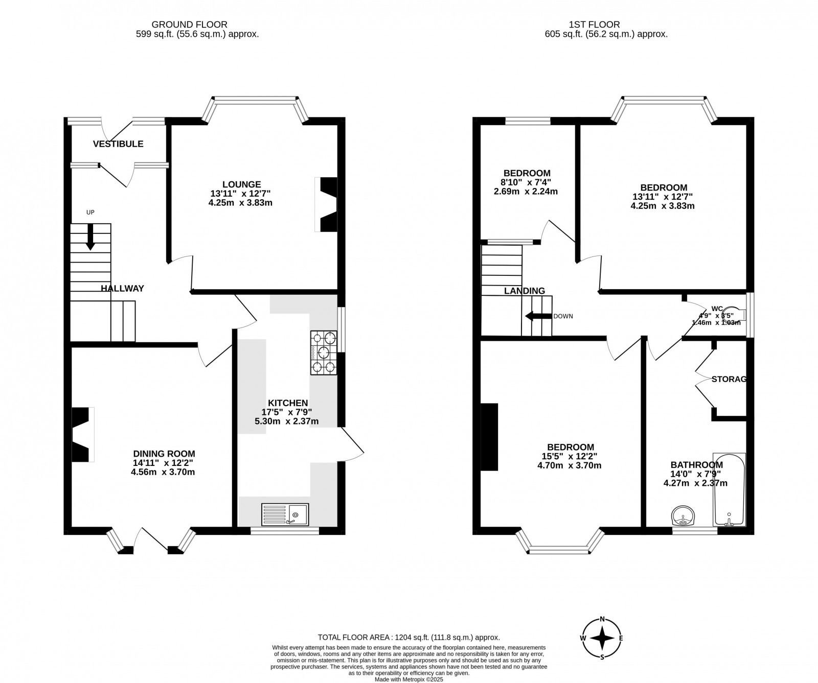
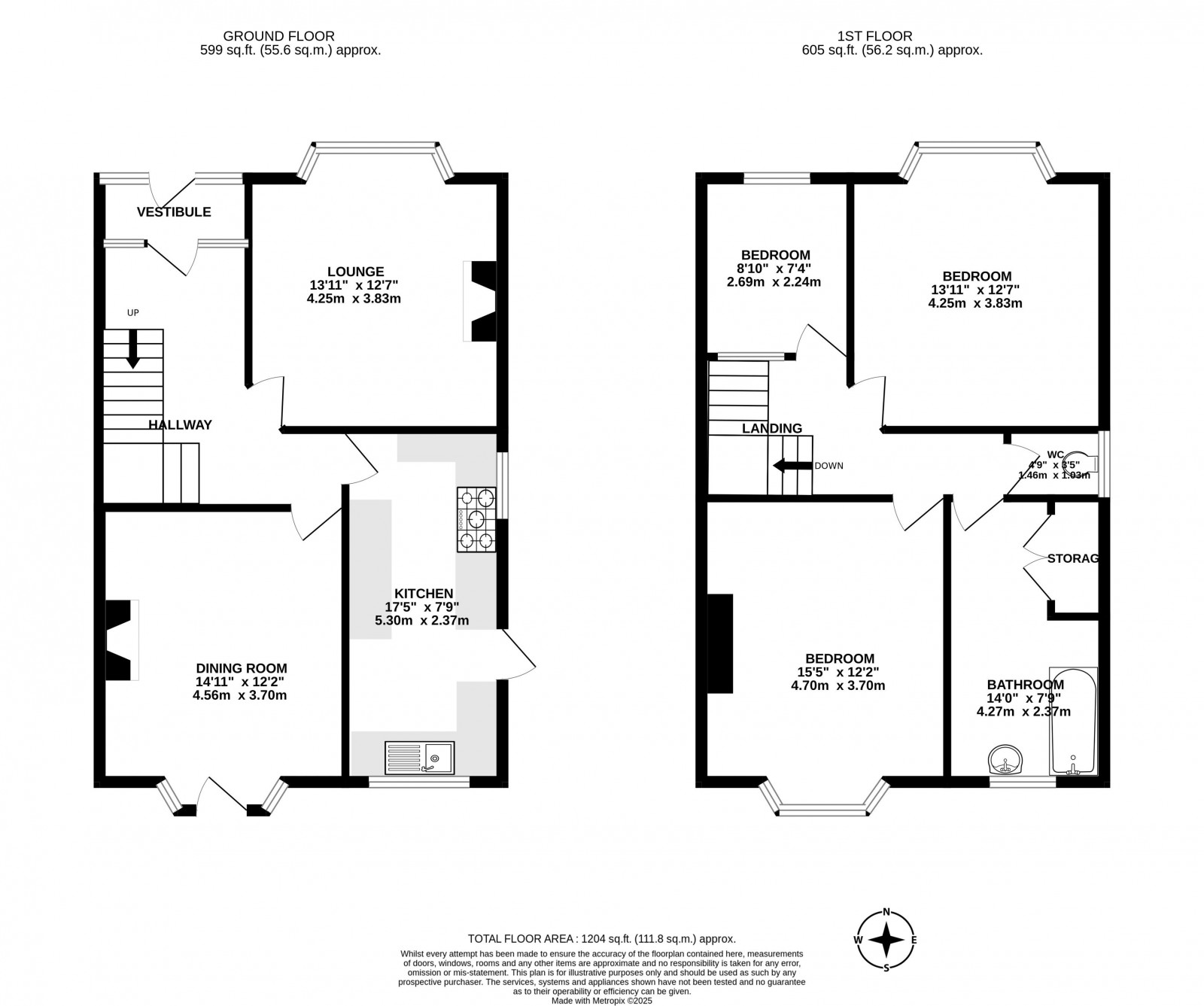
On entering through the attractive glazed porch, you’re welcomed into a spacious hallway with the original staircase leading to the first floor. The elegant lounge is bathed in natural light from a beautiful bay window, elevated to enjoy pleasant views, and centred around an attractive feature fireplace. The adjoining dining room also features a walk-in bay window, a traditional wooden fire surround, and overlooks the rear garden, making it an ideal space for family gatherings or entertaining. To the rear, the kitchen is fitted with a range of wall and base units, contrasting work surfaces, tiled splashbacks, a stainless-steel sink and a classic Rayburn cooker. A side door provides access to the driveway and rear garden.
Upstairs, a spacious landing leads to three well-proportioned bedrooms. The principal bedroom enjoys a lovely bay window and elevated outlook, while the second is another generous double. The third bedroom is a comfortable single, perfect for a child’s room or study. The family bathroom includes a panelled bath with an overhead shower and pedestal wash basin, with a separate WC adjacent.
Externally, the home benefits from a newly block-paved driveway providing excellent off-road parking for several vehicles and access to a large garage. The front garden is neatly lawned, while the delightful rear garden is mainly laid to lawn with mature planted borders, providing a secure, private outdoor space ideal for relaxation or play.
Perfectly positioned between Wigan town centre and the thriving village of Standish, the property enjoys close proximity to the Royal Albert Edward Infirmary, local shops, cafés, and excellent schools. Nearby, Haigh Woodland Park offers over 250 acres of beautiful countryside, while easy access to the M6 motorway ensures convenient commuting to Manchester, Liverpool, and Preston.
This charming home — available with no onward chain — offers an exciting opportunity to acquire a property on one of Wigan’s most prestigious roads.
Early viewings are highly recommended.
Floorplan for Wigan Lane, Wigan
  • Traditional Style Semi Detached House
  • Enjoying an Elevated Position on the Prestigious Wigan Lane
  • Approx 1204 sq. feet of Accommodation
  • Three Bedrooms
  • Driveway and Garage
  • Gardens to the Front and Rear
  • No Onward Chain

Book a Viewing

This site is protected by reCAPTCHA and the Google Privacy Policy and Terms of Service apply.